T20

Shanghai, China
Fotografia © Jacques Ferrier Architecture / Photo Luc Boegly
Fotografia © Jacques Ferrier Architecture / Photo Luc Boegly
Fotografia © Jacques Ferrier Architecture / Photo Luc Boegly
Fotografia © Jacques Ferrier Architecture / Photo Jonathan Leijonhufvud
Fotografia © Jacques Ferrier Architecture / Photo Jonathan Leijonhufvud
Fotografia © Jacques Ferrier Architecture / Photo Luc Boegly
Fotografia © Jacques Ferrier Architecture / Photo Luc Boegly
Fotografia © Jacques Ferrier Architecture / Photo Luc Boegly
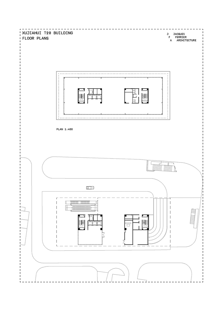
Dibuix © Jacques Ferrier Architecture
Dibuix © Jacques Ferrier Architecture
Dibuix © Jacques Ferrier Architecture
Dibuix © Jacques Ferrier Architecture
Dibuix © Jacques Ferrier Architecture
Architects
Ferrier Marchetti Studio
Any
2019
Estat del projecte
Construït
Client
Shanghai Xujiahui Commercial Real Estate Development Co. Ltd.
Architects
Jacques Ferrier Architecture with Sensual City Studio

Projectes relacionats 

  • Passerelle Raststätte Werdenberg
    WALTER BIELER AG
  • Moos
    playze
  • Reiters Reserve Premium Suiten
    BEHF Architects
  • Erweiterung und Instandsetzung Hallenbad Altstetten
    MIYO Visualisierung
  • Neubau von fünf Einfamilienhäusern
    Bäumlin+John AG

Revista 

Altres projectes per Ferrier Marchetti Studio 

Phare Tower
Paris, France
Airbus Delivery Centre
Toulouse, France
Nakâra 4* Residential Hotel
Cap d’Agde, France
Water Park Aqualagon
Villages Nature Paris, France
Huaxin Tiandi Campus
Shanghai, China