Ampliació de l'Escola Teresianes
C/ Escoles Pies, 42, Barcelona, Spain
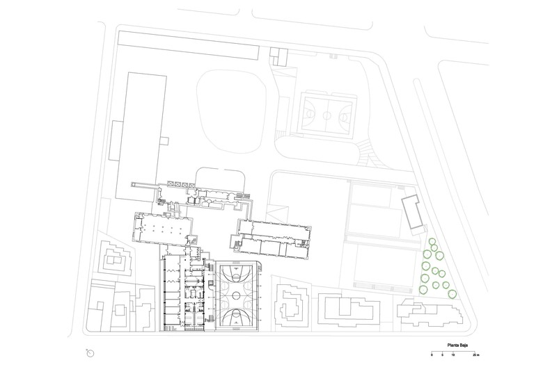
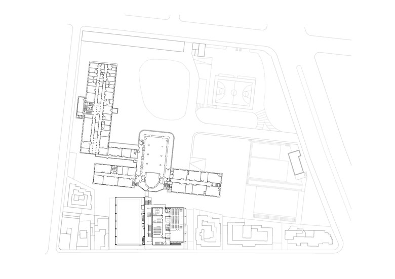
Es tracta de l’ampliació del Col·legi Concertat de les Teresianes al carrer Ganduxer.
El Col·legi, degut el seu valor patrimonial, al pas dels anys i a les diferents reformes docents s’ha anat quedant sense espais suficients d’aules i d’espai d’esbarjo cobert.
La nova ampliació re-ubica tots els cursos de Batxillerat i quart d’ESO, així com dota al col·legi d’un nou espai esportiu cobert amb les infraestructures necessàries per poder donar servei escolar i extra-escolar.
Ha suposat un repte projectar un edifici de nova planta en un entorn amb la singularitat i significació del actual Col·legi de les Teresianes.
Es va decidir en projecte ubicar l’ampliació en el lloc mes adient per no afectar a la visibilitat del pavelló dissenyat per Antoni Gaudí.
El volum respecte l’alçada i distàncies dels edificis colindants i es lliga funcionalment al pavelló esportiu existent.
L’edifici havia de parlar del seu temps, sense donar l’esquena a les textures pròpies del edifici existent, així doncs s’ha optat per una façana teixida ceràmica, que fa de gran gelosia, cap el carrer i elements lleugers i lluminosos cap l’interior de l’escola. Aquesta doble pell que tamitza tèrmica i lumínicament l’interior permet una llibertat i flexibilitat en la distribució de les finestres i els elements opacs necessaris funcionalment.
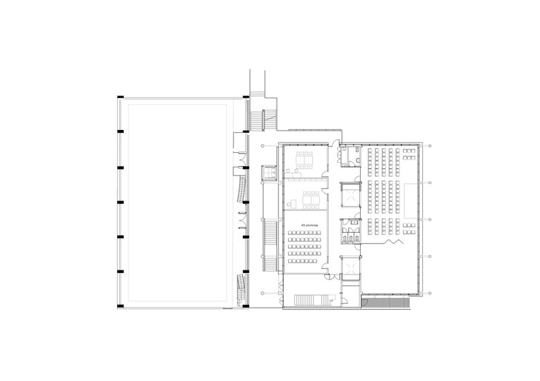
El pavelló necessitava donar servei a un espai esportiu en planta semi sotan, conseqüentment es proposa una estructura metàl·lica penjada que permet dotar al edifici d’una planta diàfana.
Les aules es distribueixen des d’un passadís-distribuïdor central que rep llum, a cadascuna de les plantes, a partir d’una xemeneia solar. Els interiors es proposen des de la màxima austeritat i simplicitat, segons les necessites estrictes del centre.
Tot el projecte s’ha treballat per aconseguir el mínim consum de climatització i mínim consum de renovació del aire interior, la vegetació juga un paper important en la qualitat del aire i coopera amb la maquinaria necessària per reduir la contaminació. S’ha optat per sistemes radiants de climatització com a solució que proporciona un major confort i transferència tèrmica.
La ubicació del edifici permet reestructurar el funcionament general del Col·legi i possibilita diferenciar clarament un accés per alumnat de segon cicle, així com dotar de serveis extraescolars que no interfereixen amb la els horaris i funcionament escolar i de la comunitat religiosa que li dona servei.
- Architects
- picharchitects
- Any
- 2014
- Estat del projecte
- Construït














