The Center for Asian Art at the Ringling Museum of Art
Florida State University, Sarasota, USA
A Renovation and Addition to a Historic Museum at Florida State University Sarasota, FL – The John and Mable Ringling Museum of Art is the legacy of circus entrepreneur and art collector John Ringling and his wife, Mable. The Museum—which features both a permanent collection and temporary exhibition galleries—sits on a historic sixty-six acre estate that also includes the Venetian-Gothic Cà d’Zan mansion, the winter-residence of John and Mable Ringling, the Tibbals Learning Center, the John M. McKay Visitors Pavilion (housing the Historic Asolo Theater), the Johnson/Blalock Education/Conservation Building and The Ulla R. and Arthur F. Searing Wing. Believed to be originally envisioned as one of the most comprehensive art museums in the world, the Museum was ahead of its time in assembling a significant collection of Asian Art. Now governed by Florida State University, the Museum establishes the Ringling Estate as one of the largest museum-university complexes in the United States.
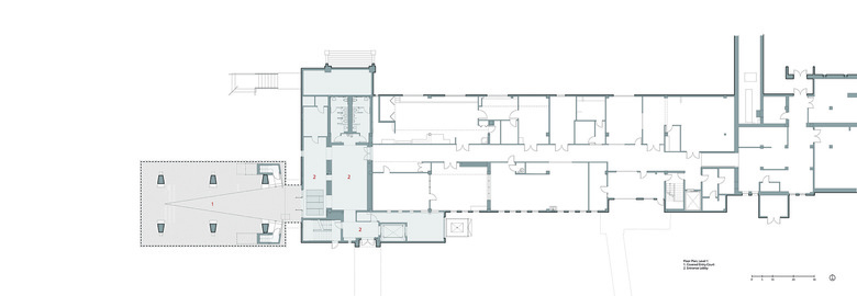
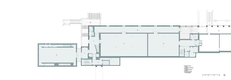
The Asian Art Study Center is an addition and ‘gut renovation’ and to the West Wing galleries on the southwest corner of the Museum complex. The renovation converts approximately 18,000 square-feet of existing gallery space from temporary exhibition space to permanent galleries for the museum’s growing Asian collection. A 7,500 square-foot addition houses new gallery space and a multi-purpose lecture hall. The Asian Art Study Center also includes innovative study/storage space and seminar rooms for scholars, researchers and students.
The addition’s façade is composed of deep-green, glazed terra cotta tiles that address the client’s requirement of a new monumental entrance. The façade relates to the natural environment of the Museum’s extensive landscape, and its color and chiseled profile are reminiscent of the Cà d’Zan mansion’s ceramic detailing. Machado Silvetti collaborated closely with Boston Valley Terra Cotta to develop the color, form and installation technique for the panels. The over 3,000 tiles provide a high performance, visually striking building envelope that redefines the functionality of the surrounding site by activating the existing courtyard and by addressing circulation and infrastructure needs of the site.
- Architects
- Machado Silvetti
- Any
- 2016
- Estat del projecte
- Construït

















