Theater und Philharmonisches Orchester
Theaterstraße 6-10, Heidelberg, Germany
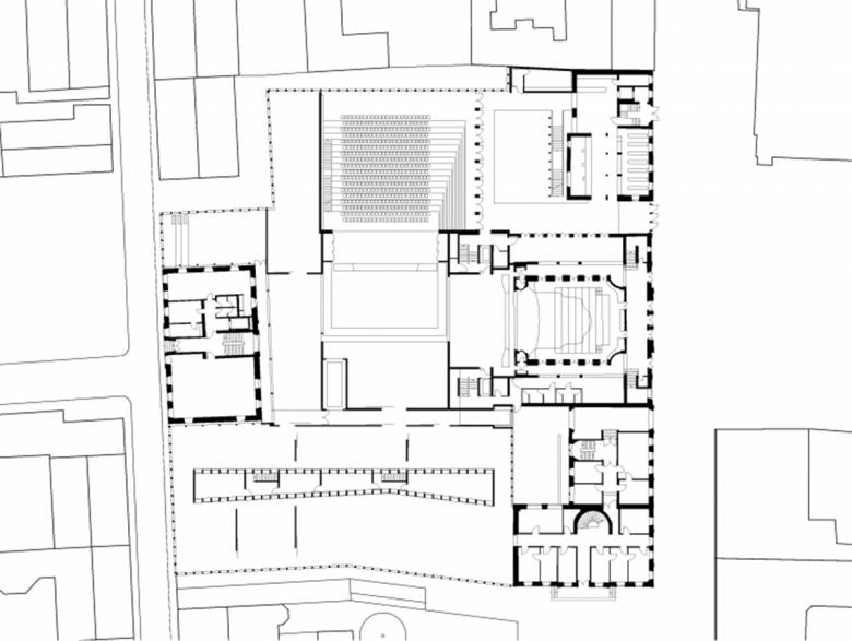
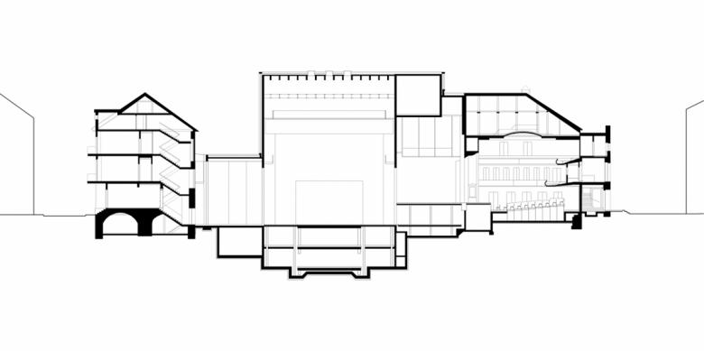
Die große Kubatur der Theaterfunktionen verbirgt sich unter einer durchgehenden nur zweigeschossigen Dachplatte. Diese fährt allseitig die Grundstückskanten nach und verbindet so die heterogene Gebäudesubstanz des historischen Bestands. Die aufragenden Kuben der Proberäume und des Bühnenturms bilden maßstäbliche Hochpunkte und Gliederungen innerhalb der Dachlandschaft der Altstadt. Die senkrechte, feingliedrige Fassadenstruktur aus hell eingefärbten Sichtbeton-Fertigteilstützen nimmt vorhandene Proportionen auf und gibt den Altbauten ein zurückhaltendes, ruhiges Passepartout, so dass diese in ihrer Wirkung gesteigert werden. Aus der Kombination der alten und neuen Bühnenbereiche ergibt sich eine untypische Seitenerschließung des neuen Theatersaals, aus der ein neuartiges Raumkonzept mit vielfacher Bespielbarkeit entwickelt wird.
- Architects
- Waechter + Waechter Architekten
- Any
- 2012
- Estat del projecte
- Construït
- Client
- Theater und Orchesterstiftung Heidelberg - vertreten durch GGH Gesellschaft für Grund- und Hausbesitz mbH Heidelberg
- Wettbewerb
- 2008, 1. Preis
- Auszeichnung
- ICONIC Award 2013
- Auszeichnung
- 2013, DAM Preis für Architektur in Deutschland
- Auszeichnung
- 2014, Hugo-Häring-Auszeichnung, BDA Heidelberg
- Preisträger
- 2015, Hugo-Häring-Landespreis
- Special Mention
- 2015, German Design Award, Kategorie Architecture and Urban Space
- Nominierung
- 2016, Staatspreis Baukultur Baden-Württemberg


































