Théâtre et Salle des Fêtes de Carouge
Rue Ancienne 57, Rue Ancienne 57, Carouge, Switzerland
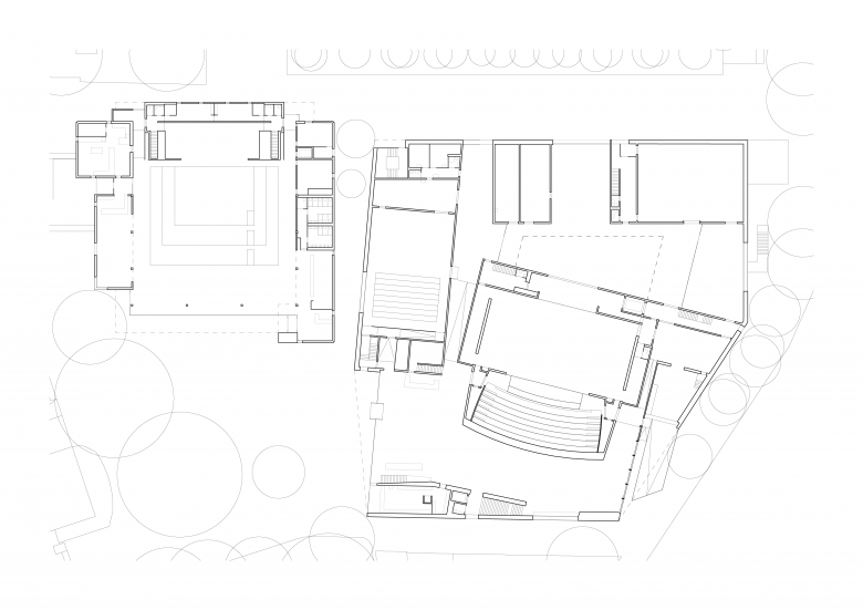
Le Théâtre conforte un lieu de création complet dans le dense tissu carougeois. La friction entre un site très restreint et de grandes contraintes théâtrales impose une forte concentration où tous les éléments se fédèrent en un seul organisme. Un long processus de concertation (référendum compris) a fondé le projet dans la conscience collective tandis que l’outil théâtral était optimisé avec les utilisateurs.
A l’échelle du site, le projet compose cinq grandes pièces du programme (trois nouvelles salles, salle des fêtes existante, esplanade d’entrée) en exploitant leurs interstices pour définir les circulations intérieures et extérieures. Côté public, le foyer s’ouvre complètement sur l’esplanade tandis qu’à l’arrière la halle de montage forme une cour intérieure regroupant les scènes et les ateliers de décors. Le premier étage est consacré au travail avec ateliers, bureaux, salles de réunion, loges et régies distribués par un parcours circulaire.
Ajustée au plus près des volumes imposés, l’enveloppe du Théâtre présente un jeu de masses étagées pour maîtriser leur échelle. L’exceptionnelle absence de joints de dilatation dans les parements renforce le caractère monolithique du bâtiment. La couleur beige, la dimension allongée et la rusticité de la brique président au dialogue des façades avec le ciel, la ville et la végétation.
- Architects
- PONT12 architectes sa
- Any
- 2021
- Estat del projecte
- Construït
- Client
- Ville de Carouge
- Ingénieur civil
- EDMS SA
- Ingénieur façade en brique
- Zpf Ingenieure AG
- Ingénieur CV
- Jacob Forrer SA
- Ingénieur S
- SRG / engineering – Schumacher&CHIngS Ingénieurs SA
- Ingénieur E
- Thorsen Sàrl
- Ingénieur géotechnicien
- De Cerenville, Géotechnique SA
- Scénographe
- Thierry Guignard scénographe
- Architecte paysagiste
- Klaus Holzhausen et Interval Paysage Sàrl




















