TMW – Die Zukunft der Stadt
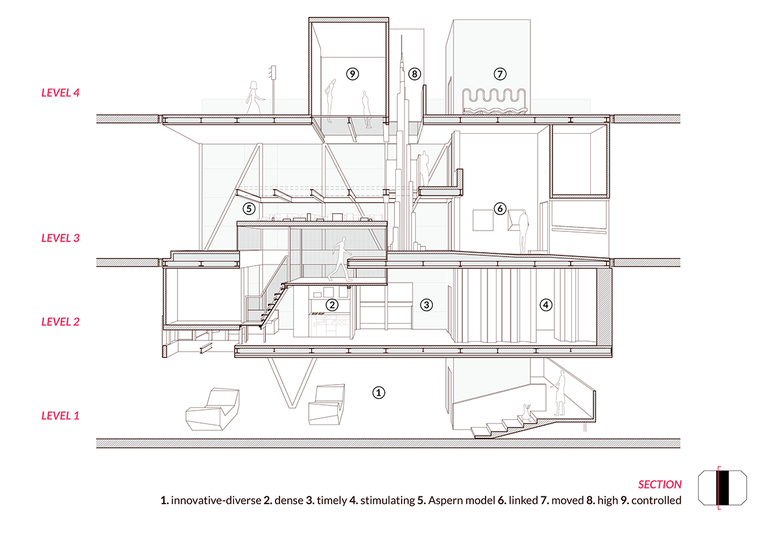
Start der Kooperation war der 2014 ausgelobte Wettbewerb für die permanente Erweiterung der Ausstellungsfläche im Ostflügel des Technischen Museum Wiens, aus dem propeller z mit dem Vorschlag eines modularen, die verschiedenen Ebenen verbindenden Regals als Gewinner hervorgingen. PPAG erhielten den Auftrag für die erste Bespielung des sogenannten „Basecamp“ anlässlich der Ausstellung Die Zukunft der Stadt. Ein Thema, an dem man aufgrund der heutigen Dynamik eigentlich nur scheitern kann, somit ein guter Grund, die Herausforderung anzunehmen. Von den zuständigen KuratorInnen des TMW wurden konsequent unorthodoxe und neue Wege beschritten, die Inhalte herauszudestillieren: nicht wie üblich, das kuratorische Konzept ist zuerst da und die Ausstellungsarchitektur folgt dem, sondern in einem intensiven wechselseitigen Prozess nähern sich Raum und kuratorischer Inhalt schrittweise aneinander an. Unter den ordnenden Reitern – innovativ / vielfältig / zeitgerecht / reizvoll / dicht / was wäre wenn / gemacht / vernetzt / bewegt / hoch / gesteuert – wurden zwischen KuratorInnen und ArchitektInnen die Inhalte über Monate entwickelt und platziert. Schon in dieser ersten Bespielung werden die vielfältigen Möglichkeiten der flexiblen Grundstruktur des Basecamp ausgereizt, Decken-, Boden- und Wandplatten geöffnet und über 4 Ebenen neue Raumzusammenhänge eingeschrieben. Russische Hängung vs. White Cube. Die Maßstäbe Stadt, Haus, Wohnung, Zimmer, bis hin zu den Oberflächendetails, treffen in der Ausstellungsarchitektur aufeinander, beziehungsweise gehen ineinander über. Wo es geht, ist die Architektur selbst die Botschaft, der pure Raum wird als Informationsträger verwendet. Die Ausstellung veranschaulicht die komplexen Zusammenhänge und den Ansatz, sich dem Thema von vielen Seiten zu nähern, aus materiell-technischer, statistischsoziologischer wie stadtplanerischer und architektonisch-atmosphärischer Sicht. Der Link zur reichhaltigen Sammlung des Technischen Museum (das ja immer Ausstellungsort des jeweiligen Neuen war!) wird über Pfade, sogenannte „Expeditions“ hergestellt. Bei aller Komplexität des Themas können wir sagen: Stadt ist im Anthropozän zu einem guten Teil planbar und eine Herausforderung an alle Interessierten und die PlanerInnen im Speziellen.
- Architects
- PPAG architects
- Any
- 2016
- Estat del projecte
- Construït
- Client
- Technisches Museum Wien
- Equip
- Florian Bartelsen, Jakub Dvorak, Anna Krumpholz, BIllie Murphy
- Büro Bleed
- Grafik
Projectes relacionats
Revista
-
-
Bâtiment de la semaine
The Three-Body Problem: Trapped in a Wave Sandwich
Eduard Kögel, Scenic Architecture Office | 13.04.2026 -

















