«Tower 55» Hagenholzstrasse
Hagenholzstrasse 55-59, Zürich, Switzerland
Turm und Drang —
Ein lebhaftes Stadtquartier vor Augen, wurde für ein Grundstück in Leutschenbach eine adäquate Volumetrie und Nutzung gefunden, die den aktuellen Transformationsprozess stärken soll.
Leutschenbach ist derzeit eines der dynamischsten Stadtzürcher Entwicklungsgebiete: Neue Überbauungen bringen mehr Dichte, mehr Wohnraum und einen Massstabssprung in das einstige Gewerbequartier. Das städtische Leitbild sieht dabei vor, dass wichtige Strassenzüge durch «Hochpunkte» gefasst und an bedeutsamen Orten gar ganze Hochhausgruppen ausgebildet werden. Im Gegenzug soll ein arealübergreifender Freiraum als «Innerer Garten» dienen. Für ein Grundstück an der Hagenholzstrasse hat Züst Gübeli Gambetti nun einen Wohnturm vorgesehen, der den Massstab der Zukunft fortschreiben will.
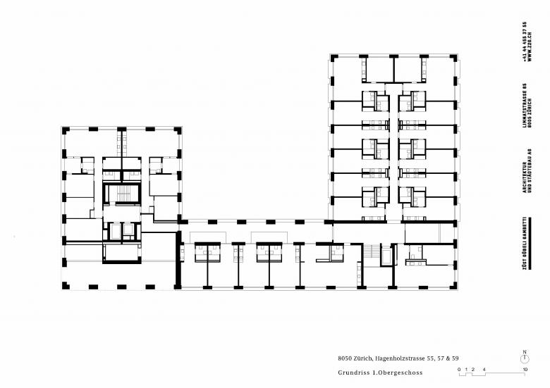
Nicht nur mit dem benachbarten Wolkenwerk-Ensemble befindet sich der 80-Meter-Turm in guter Gesellschaft. Zusammen mit dem «Sky-Key» vis-à-vis formuliert er eine Torsituation. Darüber hinaus besitzt er das nötige Gewicht, um selbst mit den Hochhäusern am Quadroplatz auf Augenhöhe zu kommunizieren. Überhaupt schliesst das Hochhaus nicht einfach nur eine Lücke, sondern ist auch eine einladende Geste: Unterstützt von einer 90 Grad-Drehung Richtung «Leutschenbach Kopf», verweist seine Hauptfassade auf den «Inneren Garten», der so einen prominenten Auftakt erhält.
Der Sockel formuliert dabei einen Hof, in den sich der «Innere Garten» ergiesst. Zur Strasse hin liefert er dagegen eine robuste Kante, die im Parterre ein Café und zum Garten durchgestreckte Gewerbeflächen etabliert. In den Etagen darüber befinden sich Studios, wobei diverse Gemeinschaftsräume und zwei Dachgärten dem Zusammenleben Impulse verleihen. Der Turm verfügt über eine repetitive Struktur, was einen variablen Wohnungsmix ermöglicht. Mittig eingerückte Loggien sind eine Antwort auf gebrauchstaugliches «Hochhauswohnen» trotz Windlasten. Gefügt zu einem scharfkantigen Körper, unterstreicht dies die Eleganz und selbstbewusste Zurückhaltung der Volumetrie. (mc)
- Habitatge plurifamiliar
- Uso Mixt
- Retail + Stores
- Restaurants, Bars, Clubs
- Desenvolupaments Urbans
- Estudis Urbans
- Architects
- Züst Gübeli Gambetti
- Any
- 2023
- Estat del projecte
- En construcció
- Client
- Bauherrschaft Artisa Real Estate AG
- Equip
- Bauherrentreuhand G&A Total Contract SA, Totalunternehmer Eiffage Suisse AG, Architekt Ausführung S. & M. Dello Buono Architekten, Landschaft Noa Landschaftsarchitektur, Statik HTB Ingenieure AG, Bauphysik Kopitsis Bauphysik AG, Elektro GEANET engineering gmbh, HLKS Wechselraum GmbH, Brandschutz Swiss Safety Center AG, Fassade ap3 AG
- Architektur Ausführung
- S. & M. Dello Buono Architekten
















