Town House - Kingston University

London, Great Britain
The interlocking volumes connect, physically or visually, creating an environment that encourages overlap and exchange.
Fotografia © Alice Clancy

Name of work in English
Town House - Kingston University

Name of work in original language
Town House, Kingston University

Placement
Prize Winner

Prize year
2022

Year completed
2019 (Year began 2017)

Authors
Shelley McNamara (1952 Ireland); Yvonne Farrell (1952 Ireland); Ger Carty (1964 Ireland); Philippe O'Sullivan (1966 Ireland); Matt McCullagh (1981 Ireland); Joanne Lyons (1985 Ireland); James Rossa O'Hare (1980 Ireland); Jamie Conway (1986 Ireland); Shane Twohig (1988 Ireland); Leah Hogan (1986 Ireland); Darren Monahan (1989 Ireland); Eibhlín Ní Chathasaigh (1986 Ireland); Paul Durcan (1984 Ireland); Edwin Jebb (1988 Ireland); Michael Stack (1984 Ireland)

Collaborators
Construction company: Willmott Dixon Project management: Turner & Townsend Structural engineering: AKT II Civil, soil and survey: AKT II Landscape architect: Dermot Foley Mechanical: Chapman BDSP Electrical: Chapman BDSP Environmental: Chapman BDSP Façades: Billings Design Associates Quantity surveyor: Turner & Townsend Fire consulting: Chapman BDSP Acoustical: Applied Acoustic Design Lighting: Chapman BDSP Acces: Michael Slattery & Associates Coordination: Steer Davies Gleave Building advising: Nathaniel Lichfield & Partners
Program
Education
Labels
Dance, Library

Total area
7800 m2

Usable floor area
9056 m2

Cost
5267 €/m2

Client
Kingston University

Client Type
public

Map
LatLng: (51.404073, -0.3038081)

Imagine a place where reading, dance, research, performance, lectures, and exhibitions co-exist, under one roof, and the door is open to everyone. This is the new Town House building in Kingston. A juxtaposition of contemplative and active performative activities offering an imaginative approach to education as a process of engagement and discovery. Town House is located on the Penrhyn Road campus of Kingston University. The building’s educational vision and ethos is uniquely rich and progressive with unexpected adjacencies set up by virtue of the programme. The library facility is twinned with dance studios, performance and event spaces. The building is a democratic open infrastructure, a labyrinth of interlocking volumes, maintaining the feeling of being in one unified environment where these opposites can happily co-exist. Town House is a warehouse of ideas, and it’s façade seeks to establish it’s civic presence in terms of articulation and detailing, and in terms of relationship between façade and public space as appropriate to context. The transparency of the front façade draws open towards its centre revealing interlocking volumes moving vertically connecting from ground to top. There are no barriers. Inspired by the progressive educational vision presented in the brief, and the wish to connect with the community, we responded by arranging the programme in a three dimensional matrix, one singular complex space which links the various elements of the brief, giving at the same time to each part its identity, a place where spaces and uses interlock, and connect physically or visually, creating an environment that encourages overlap and exchange. Generous open plan floor plates are provided by an elemental and expressive structure creating a spatial character of loft type spaces offering flexibility and future adaptability. Formally the plates adjust as they rise vertically, reducing in size, becoming more open and light at the upper levels enjoying views towards the town, the river and nearby Hampton Court. An open staircase weaves its way up the building forming a connection between the interlocking volumes and uses. The building’s interior plays out in the facade providing opportunities to relate directly with the exterior colonnade that surrounds the building on three sides and provides terraces to act as extensions of the interior programme. The interior of the building is predominantly defined by a precast concrete column and beam structural system supporting exposed ribbed slabs. The quality of the interior spaces is influenced by the type and finish of the structure, while floor loading capacities take account of long-term flexibility and future change opportunities. The economical structural column grid is set out on a standard precast module spacing while the perpendicular spacing is designed to provide spans to accommodate the requirements of the brief. The concrete soffit is a durable robust element that is optimized as an energy cooling source via TABS embedded in the fabric, while the ribs themselves are performing to accommodate the acoustic treatment to satisfy the sound absorption needs of the spaces below,contributing to the building BREEAM Excellent rating. Externally, the colonnade comprises a frame manufactured with precast concrete giving a reconstituted stone finish resembling Portland Stone, and a setback elevation infilled with a combination of brick, aluminium framed window panels and modulated with precast concrete fins which match the main colonnade elements.

The transparency of the front façade draws open towards its centre revealing interlocking volumes moving vertically connecting from ground to top.
Fotografia © Dennis Gilbert
An open staircase weaves its way up the building. The building’s interior plays out in the facade, relating directly with the exterior colonnade and terraces.
Fotografia © Dennis Gilbert
Library space on the second-floor - Generous open-plan floor plates are provided by an elemental and expressive structure creating a spatial character of loft type spaces offering flexibility and future adaptability.
Fotografia © Ed Reeve
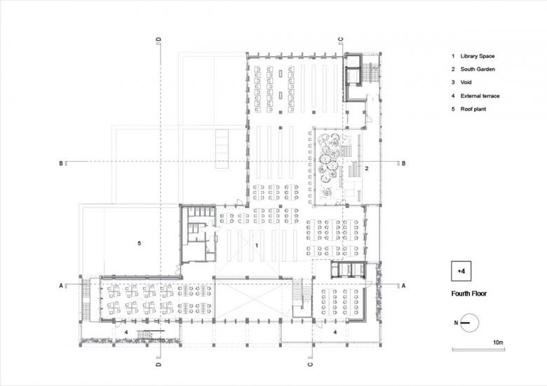
Fourth floor library - Formally the plates adjust as they rise vertically, reducing in size, becoming more open and light at the upper levels enjoying views towards the town, the river and nearby Hampton Court.
Fotografia © Dennis Gilbert
Site Plan
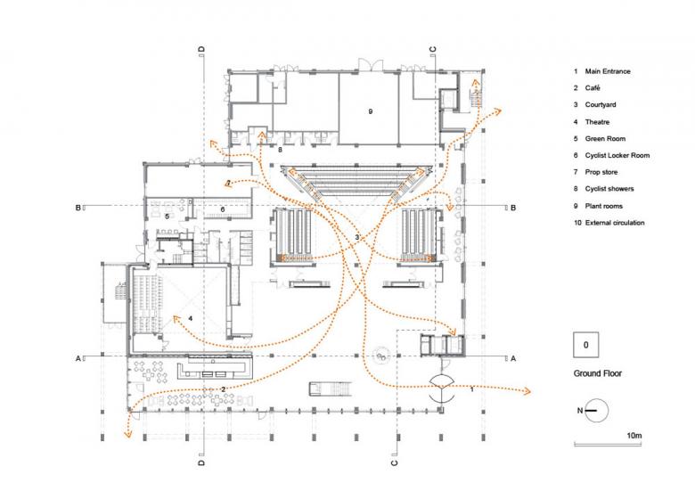
Ground floor plan
Fourth floor plan
Sections AA, BB, DD
(Top left) South elevation; (Bottom left) Section CC; (Right) Detail section through the colonnade
(Bottom left) Plan of the Courtyard; (Bottom right) Ancient Greek Bouleuterion; (Top left) Sketch section; (Top right) Spacial matrix
Axonometric drawing of the colonnade and the new landscape along Penrhyn Road
Collage section through the west colonnade, showing Penrhyn Road and Surrey County Hall.
Architects
Grafton Architects
Any
2019
Estat del projecte
Construït

Projectes relacionats 

  • Gymnasium Schulstraße
    Kronaus Mitterer Architekten
  • GROHE Water Experience Center
    D’art Design Gruppe GmbH
  • Limmatquai 4
    Kästli Storen
  • Volksschule Erlaaer Schleife
    Kronaus Mitterer Architekten
  • Ortsdurchfahrt Domat/Ems
    Luminum GmbH

Revista