Umbau des ältesten Oekonomiegebäudes in Lupsingen
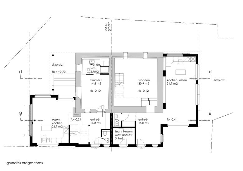
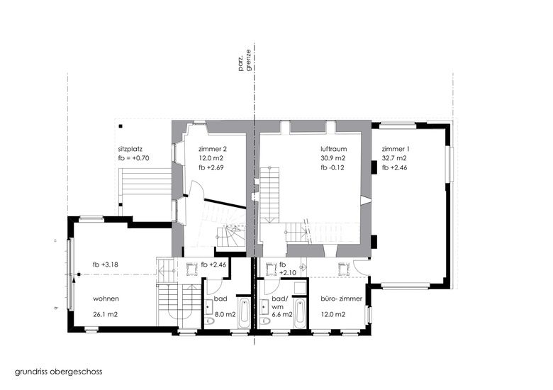
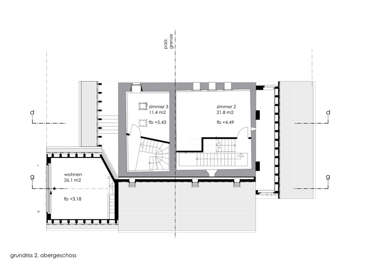
Die Bausubstanz des ältesten Ökonomiegebäudes der Gemeinde Lupsingen war in sehr schlechtem Zustand. Da es im Ortskern liegt mussten entfernte Volumen in gleicher Grösse und Form erneuert werden. Der älteste Gebäudeteil war gemauert - dieser wurde erhalten, saniert und stabilisiert. Die neuen Anbauten wurden in Holz (Elementbausweise) erstellt und mit einer regelmässigen Schalung versehen. Bei der Anordnung der Räume wurden bestehende Öffnungen und Balkenlagen in das Konzept integriert. Entstanden sind Räume mit vielfältigen Lichteintritten und die Kombination von Alt und Neu fürht zu spannenden Bezügen.
- Architects
- artevetro architekten
- Any
- 2009
- Estat del projecte
- Construït
Projectes relacionats
Revista
-
-
Bâtiment de la semaine
The Three-Body Problem: Trapped in a Wave Sandwich
Eduard Kögel, Scenic Architecture Office | 13.04.2026 -









