Umbau Ferienhaus in Vitznau
Eine in die Jahre gekommene Liegenschaft aus den 60er Jahren musste saniert und seiner Lage entsprechend aufgewertet werden.
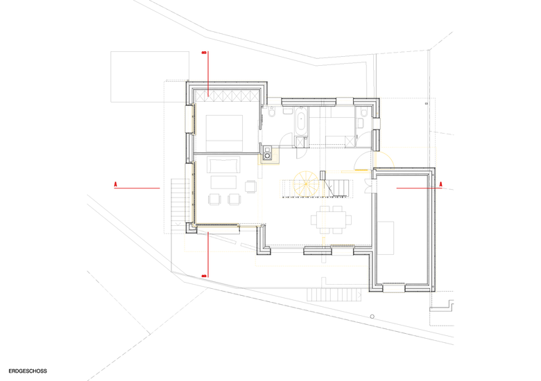
Die Architektur des bestehenden Gebäudes ist stark durch seine ausserordentliche Lage und den spektakulären Ausblick auf den Vierwaldstättersee bestimmt. So inszenieren räumlich versetzte Terrassen und Volumina die Ausrichtung nach den Himmelsrichtungen unterschiedlich. Ziel war es, diese besonderen Qualitäten der Liegenschaft mit den Umbaumassnahmen zu erhalten und verstärken.
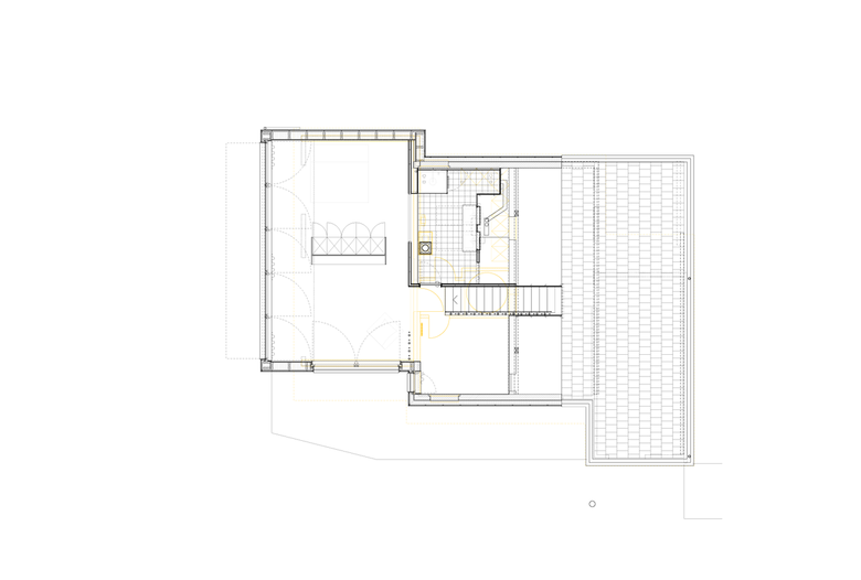
Durch den Teilabbruch des bestehenden, westlichen Dachs konnte im Obergeschoss eine Ebene für ein zusätzliches, grosses Zimmer gewonnen werden. Dieses wird leicht
auskragend über das Erdgeschoss geschoben, womit neben dem Flächengewinn auch eine räumliche Orientierung nach unten, Richtung See erreicht wird. Zu den vorhandenen Terrassen bildet der Raum mit seiner Auskragung ein volumetrisch komplementäres Element. Trotzdem war wichtig, dass der neue Raum weder von aussen, noch im Inneren aufgesetzt oder appliziert wirkt.
Die Flächen im Obergeschoss werden mit einer neuen, geradläufigen Treppe erschlossen. Sie wird in der Logik der Dachneigung angeordnet und verbindet so die beiden Geschosse zu einem räumlichen Ganzen. Gleichzeitig gliedert sie mit ihrer leichten, zwischen geschlossen und offen oszillierenden Konstruktion das sonst unveränderte Erdgeschoss komplett neu.
Neben der energetischen Verbesserung der gesamten Gebäudehülle wurde auch die Wärmeerzeugung erneuert. Eine Luft-Wasserwärmepumpe konnte diskret im Untergeschoss aufgestellt werden, ergänzt durch einen modernen Kaminofen.
- Architects
- Forsberg Architekten AG
- Any
- 2012
- Estat del projecte
- Construït






















