Umbau Isestraße

Hamburg, Germany
Die Küche strahlt mit ihren klaren Linien, cremefarbenen Fronten und einer dunklen Arbeitsfläche sowohl Funktionalität als auch Ästhetik aus.
Fotografia © Jakob Börner

Kunst und Zeitgeist

Dem Architekten Bastian Bechtloff ist es gelungen, eine Hamburger Wohnung aus den 1970er Jahren mit viel Feingefühl und Respekt vor der Baugeschichte in die Gegenwart zu versetzen. Das Ziel war es, das sachliche, zeitlose Erscheinungsbild des Gebäudes in der beliebten Isestraße zu bewahren und zugleich moderne, inspirierende Wohnräume zu schaffen. Ein Dialog zwischen Vergangenheit und Gegenwart entstand, der Architektur, Kunst und Funktion vereint.

Der Eingangsbereich, akzentuiert durch ein abgerundetes Einbaumöbel samt Sitzbank, empfängt die Bewohner mit einer gelungenen Balance aus Funktionalität und künstlerischem Anspruch. Die Möbelstücke setzen mit ihrer geschwungenen Formensprache einen subtilen, aber markanten Akzent, der sich nahtlos in das Gesamtkonzept der Wohnung einfügt. Sie verkörpern die Verbindung von Ästhetik und Pragmatik und bilden einen einladenden Auftakt in die neu gestalteten Räume. Im Zentrum des Wohnraums wurde eine zuvor verdeckte Stütze bewusst freigelegt und durch eine runde Verkleidung in Szene gesetzt. Diese gestalterische Entscheidung hebt die Tragstruktur hervor, schafft ein spannungsreiches Spiel zwischen ursprünglicher Architektur und moderner Gestaltung und es gelingt eine neue Großzügigkeit:
Aus dem engen Flur wird ein Bereich, den die Kunstsammler liebevoll „Galerie“ nennen.

Die Küche strahlt mit ihren klaren Linien, cremefarbenen Fronten und einer dunklen Arbeitsfläche sowohl Funktionalität als auch Ästhetik aus. Glänzende und matte Oberflächen spielen bewusst miteinander. Indirekte Beleuchtung hebt die geometrischen Formen subtil hervor und sorgt für ein angenehmes Raumgefühl. Der offene Wohnbereich verbindet Küche, Esszimmer und Wohnzimmer zu einer Einheit. Diese großzügige Struktur fördert nicht nur den Dialog zwischen den Bereichen, sondern bietet auch die Flexibilität, den Raum sowohl für gesellige Anlässe als auch für ruhige Stunden zu nutzen. Die zurückhaltende Möblierung ergänzt das minimalistische Konzept und sorgt für eine zeitlose Atmosphäre. Die Formensprache mit den gerundeten Ecken macht aus Kücheninsel, Küchentisch und der klassischen Eckbank maßgefertigte Designermöbel.

Das Schlafzimmer verkörpert Ruhe und Klarheit. Dezente Farbnuancen, edle Materialien und eine minimalistische Gestaltung schaffen einen Rückzugsort der Entspannung. Von hier aus genießen die Bewohner den Blick auf den beliebten Hamburger Isebekkanal. Das großzügige Fenster öffnet den Raum zur Natur und lässt Licht und Weite in den Mittelpunkt.

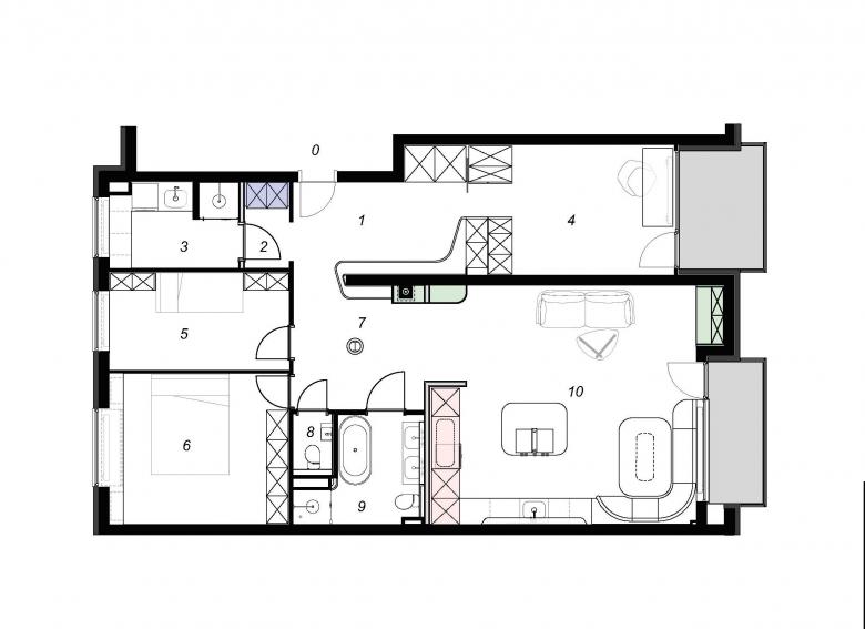
Während der ursprüngliche Grundriss die klassische Aufteilung eines Wohnraums widerspiegelte, zeigt die Neugestaltung eine moderne, funktionale Optimierung. Der Eingangsbereich bleibt als repräsentatives Element erhalten, ergänzt durch eine praktische Garderobe und den in elektrisches Blau gehüllten Abstell- und Schrankbereich. Von hier gelangt man in den neuen Hauswirtschaftsraum. Ein ehemaliges Kinderzimmer wurde für das Paar in ein modernes Home-Office verwandelt. Der Schlafbereich erhält durch Einbaumöbel eine neue räumliche Tiefe, während Küche und Wohnbereich zu einer offenen Einheit verschmelzen. Das Badezimmer wurde funktional neu strukturiert und modern gestaltet. Die Umgestaltung nutzt jeden Quadratmeter und schafft ein Wohngefühl, das durch Offenheit, Klarheit und zeitgemäße Eleganz besticht.

Der offene Wohnbereich verbindet Küche, Esszimmer und Wohnzimmer zu einer Einheit
Fotografia © Jakob Börner
Die Formensprache mit den gerundeten Ecken macht aus Kücheninsel, Küchentisch und der klassischen Eckbank maßgefertigte Designermöbel.
Fotografia © Jakob Börner
Das offene Wohnkonzept bietet die Flexibilität, den Raum sowohl für gesellige Anlässe als auch für ruhige Stunden zu nutzen.
Fotografia © Jakob Börner
Einbaumöbel im Eingangsbereich mit Abstell- und Schrankbereich in elektrischem Blau
Fotografia © Jakob Börner
Bereich für das Home Office mit reduziertem Einbaumöbel
Fotografia © Jakob Börner
Schlafzimmer mit Blick auf den Isebekkanal.
Fotografia © Jakob Börner
Die kleine „Kunstgalerie“
Fotografia © Jakob Börner
Grundriss nach dem Umbau
Dibuix © Bastian Bechtloff
Grundriss vor dem Umbau
Dibuix © Bastian Bechtloff
Architects
Buero Bechtloff
Any
2024
Estat del projecte
Construït

Projectes relacionats 

  • Moos
    playze
  • Reiters Reserve Premium Suiten
    BEHF Architects
  • Erweiterung und Instandsetzung Hallenbad Altstetten
    MIYO Visualisierung
  • Neubau von fünf Einfamilienhäusern
    Bäumlin+John AG
  • The Forge in der 105 Sumner Street in London
    Kiefer Klimatechnik GmbH

Revista 

Altres projectes per Buero Bechtloff 

Umbau Wohnhaus Heinrich-Plett-Straße
Hamburg, Germany
Umbau Wohnhaus Halbmondsweg
Hamburg, Germany
Headquarter Evernest
Hamburg, Germany
Wohnhaus Aumühle
Aumühle, Germany
Clubhaus Norddeutscher Regattaverein
Hamburg, Germany