Umbau Maisonettewohnung Zwinglistrasse

Wohn- und Essbereich mit Küche im Obergeschoss
Fotografia © Ulrich Stockhaus, Luzern

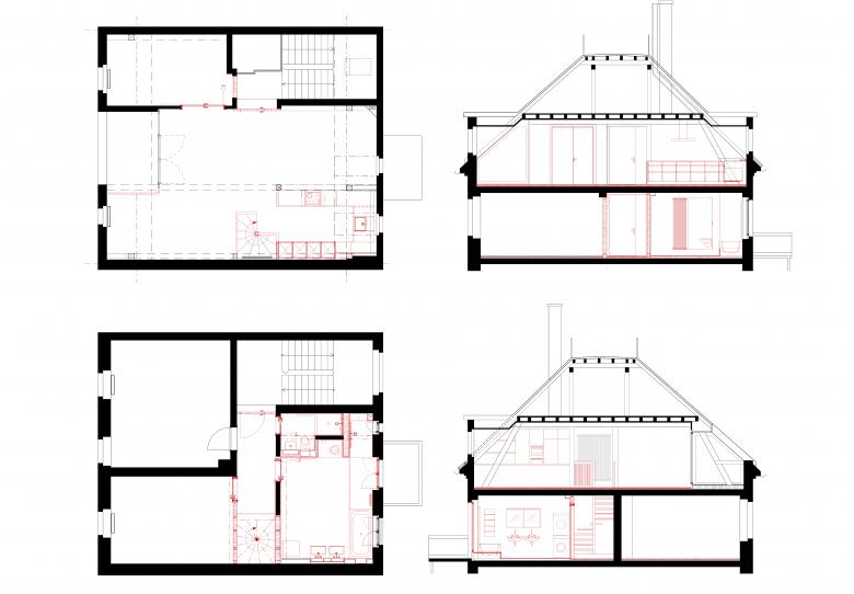
Aus zwei separaten Wohnungen in einem Wohnhaus in der Quartiererhaltungszone von Zürich – Aussersihl wird eine Maisonettewohnung mit interner Treppenverbindung. Während sich die Schlafzimmer und Bäder im unteren Geschoss befinden, wird im darüberliegenden Dachgeschoss der offene Wohnbereich mit Küche realisiert. Die neue Disposition der Nassräume erforderte eine vollständig neue Leitungsführung der Sanitärleitungen, welche allesamt in eine bestehende Fallleitung zu münden hatten.

Das Bad ist ein geräumiges Zimmer
Fotografia © Ulrich Stockhaus, Luzern
Badeinbau Frontal
Fotografia © Ulrich Stockhaus, Luzern
Wendeltreppe vom Schlaf- ins Wohngeschoss
Fotografia © Ulrich Stockhaus, Luzern
Dibuix © Met Architektur
Architects
Met Architektur
Any
2014
Estat del projecte
Construït
Client
Privat
Equip
Mitarbeit Stefan Kolev Zürich

Projectes relacionats 

  • Gymnasium Schulstraße
    Kronaus Mitterer Architekten
  • GROHE Water Experience Center
    D’art Design Gruppe GmbH
  • Limmatquai 4
    Kästli Storen
  • Volksschule Erlaaer Schleife
    Kronaus Mitterer Architekten
  • Ortsdurchfahrt Domat/Ems
    Luminum GmbH

Revista 

Altres projectes per Met Architektur 

Neubau Einfamilienhaus Mythenstrasse
Kilchberg, Switzerland
Sanierung Siedlung ABZ Wiedikon
Zürich, Switzerland
Neubau Heilpädagogische Schule Lyss
Lyss, Switzerland
Ferienhaus in Menorca
Menorca, Spain
Gemeinschaftsraum ABZ Wiedikon
Zürich, Switzerland