VDA – Verband der Automobilindustrie
Berlin, Germany
Im Februar 2010 hat der Verband der Automobilindustrie seine neuen Räume in Berlin, in unmittelbarer Nähe zum repräsentativen Gendarmenmarkt und zum Bebelplatz in Berlin-Mitte bezogen. Im denkmalgeschützten Markgrafenpalais wurden rund 4.300 Quadratmeter auf fünf Geschossen in zwei Bauabschnitten durch unser Büro ausgebaut.
Die Geschichte des Gebäudes
Das Gebäude ist Teil des historischen Bankenkomplexes aus der Zeit der 19. Jahrhundertwende. Nach einer bewegten Geschichte von Erweiterungen, Umbauten und Sanierungen stehen der Gesamtkomplex sowie die noch erhaltenen Teile der Innenräume und das Treppenhaus an der Behrenstraße unter Denkmalschutz. Die Ausbauarbeiten der sechs Geschosse des Gebäudes, welche sich nach vorangegangenen Umplanungen bisher noch im Rohbauzustand befanden, stellten eine gestalterische Herausforderung dar, der wir uns mit Sorgfalt und Respekt vor der alten Bausubstanz widmeten.
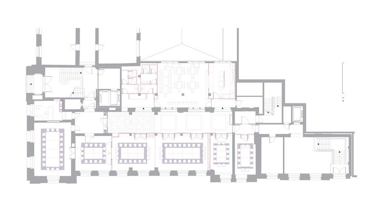
Raumkonzept
Durch das denkmalgeschützte Treppenhaus in der Behrenstraße gelangt man ins Hochparterre mit dem zentralen Eingangsbereich, um den sich der Empfang, die Konferenzräume und das Bistro gliedern. Die Etagen vom ersten bis vierten Obergeschoss wurden zu zeitgemäßen Büros ausgebaut, im 5. Obergeschoss befindet sich ein multifunktional genutzter Veranstaltungsraum. Um trotz der großen Gebäudetiefe auch in den sonst dunklen Mittelzonen einen möglichst großen Anteil Tageslicht zu erhalten, wurden die Flurwände der Büros mit raumhohen Glaselementen versehen, die durch ihre Anordnung im einen Geschoss die Querrichtung, im anderen die Längsrichtung betonen. Die Öffnung der Räume zu den Gemeinschaftsbereichen wertet diese auf und fördert die Kommunikation der Mitarbeiter und die Erlebbarkeit der Arbeit.
Umgang mit der historischen Bausubstanz
Der Zugangsbereich mit dem historischen Treppenhaus, Vestibül und ehemaliger Schalterhalle steht zum großen Teil unter Denkmalschutz. Die Marmoreinlegearbeiten, die Kassettendecke im Vestibül und die detailreich bemalte Kappendecke in der Schalterhalle werden durch die Neugestaltung inszeniert und bereichern die neuen Räume mit historischem Flair. Aus den hier vorgefundenen Stilelementen und den Anforderungen eines zeitgemäßen Bürogebäudes entwickelten wir eine Formensprache, die als Leitmotiv in den anderen Etagen variiert wurde. So entstand ein zusammenhängendes Raumgefüge, das von einer einheitlichen Identität durchdrungen ist, Alt und Neu verbindet und innerhalb der jeweiligen Geschosse den Nutzern Kommunikations- und Rückzugsmöglichkeiten bietet. Die historischen Hoffassaden vom Erdgeschoss bis zum 2. Obergeschoss wurden durch Erweiterungen in den 1950er Jahren zu Innenwänden des Gebäudes. Als freigestellte Innenfassaden wurden diese in die Raumgestaltung mit einbezogen und so zu einem eigenständigen raumbildenden Element: Die Fensteröffnungen erhielten auf einer Seite tiefleibige konische Fensterrahmen, die die historische Teilung der Sandsteinstreben aufnehmen und der Wand eine hohe Plastizität verleihen. Damit die Spuren der Zeit erfahrbar bleiben, wurden die Riemchen der historischen Oberfläche nur gereinigt, ansonsten aber in ihrem originalen Zustand belassen. In Anlehnung an die Kassettendecke des Vestibüls entwickelten wir eine Formensprache mit starkem Bezug auf das Quadrat, dass sich insbesondere in der Modellierung und plastischen Überformung der Decken wiederfindet. Den nur in Teilen erhaltenen Marmorboden der Kassenhalle ergänzten wir durch einen fugenlosen Hartkornestrich, in dem Formensprache und Farbigkeit des historischen Vorbilds aufgenommen wurden. Das Leitmotiv des Quadrats oder Rechtecks, das als rahmendes Element in Erscheinung tritt wurde auch auf die textilen Bodenbeläge der Konferenzräume grafisch übertragen. Zusammen mit der ebenso konsequent und plastisch ausgestalteten Decke erzeugten wir einen selbstverständlich wirkenden Zusammenhalt des Raumes. Um die Handwerksarbeit der historischen und im Vorfeld sanierten Kappendecke mit ihrer Deckenmalerei würdig zu inszenieren und gleichzeitig mit dem neuen Formkonzept zu vereinen, entwickelten wir eine Unterdecke mit rechteckigen Aussparungen als „Passepartout“, welche den Blick auf die aufwändige Malerei frei gibt. Zusätzlich akzentuiert werden die Felder durch eine indirekte Beleuchtung. Im Vestibül wurden, in Anlehnung an vorhandene Stuccomarmor-Flächen, die Stirnwände mit farblich angepasstem Glattspachteltechnik ergänzt.
Die Decke als prägendes Element
Aus dem Leitmotiv des Quadrats / Rechtecks entwickelten wir für die übrigen Räumlichkeiten im Erdgeschoss und in den Büroetagen die Ausformung der Decken als übergreifendes gestalterisches Element. Konstruktiv bedingte, vorhandene Deckenversprünge werden aufgenommen, konsequent weitergeführt und durch Integration der technischen Anlagen modelliert. Die Versprünge sind sowohl von der Straße als auch von der Flurseite ables- und als Raumelement erlebbar. Sie steigern sich von oben nach unten, wie Fußabdrücke in den Decken; so bekommen höhere Etagen, größere Deckenversprünge. Die integrierte Technik, beispielsweise die Raumlufttechnik als Kühlbalkendecke oder auch im Erdgeschoss die zusätzliche Medientechnik, wird durch die Deckengestaltung weitestgehend aus der Wahrnehmung des Betrachters genommen. Die mittleren Deckenfelder in den Büro- und Konferenzräumen bilden Ausstülpungen nach unten und wurden mit rechteckigen Lochplatten ausgestattet, um eine bessere Akustik zu erzielen. Auch im Beleuchtungskonzept wurde das Element des Quadrates aufgenommen und als Teil der Decke interpretiert. In den Konferenzräumen des Erdgeschosses sind eigens entwickelte rechteckige Leuchten mit Chintz Lampenschirm in die Deckengestaltung integriert. In den Büroräumen werden die Leuchten um das abgesenkte Deckenfeld herum in Vouten angeordnet und erzielen dadurch mit konventionellen Leuchtstoffröhren eine optimale Beleuchtung der Arbeitsplätze ohne Blendeffekt. In den Kombizonen des ersten bis dritten Obergeschosses bilden die Deckenversprünge eine subtile Zonierung des Raumes und inszenieren im ersten und zweiten Obergeschoss mit den so entstandenen Lichtvouten die historischen Innenfassaden.
- Interior Designers
- de Winder Architekten
- Any
- 2010
- Estat del projecte
- Construït










