Besucherzentrum Am Neuen Palais
Am Neuen Palais, Potsdam, Germany
Südlich des Neuen Palais, am Südtor im Potsdamer Schlosspark Sanssouci gelegen, wurde das ehemalige Wachgebäude von Carl von Gontard aus dem 18. Jahrhundert zu einem modernen Besucherzentrum mit Informationsräumen, Kassen, Museumsshop und Gastronomie für die Stiftung Preußische Schlösser und Gärten (SPSG) umgebaut. Nach dreijähriger Planungs- und Bauzeit eröffnete das Besucherzentrum zum Saisonbeginn am 29.03.2013 offiziell für Park- und Palaisbesucher.
Der Umbau des unter Denkmalschutz stehenden Gebäudes ist Teil eines Sonderinvestitionsprogramms für die Preußischen Schlösser und Gärten, das im Rahmen eines Masterplans im Sommer 2009 mit dem Bund und den Ländern Berlin und Brandenburg festgelegt wurde. Durch dieses Abkommen steht der SPSG eine Summe von rund 155 Millionen Euro für die Rettung nationaler Kulturgüter zur Verfügung.
Der Masterplan sieht vor, den Besucherservice der SPSG weiterhin zu verbessern und besonders schwer geschädigte Bauten und Gartenanlagen zu sanieren . Der Schwerpunkt dieser Vorhaben liegt bei den zum UNESCO-Welterbe zählenden Schlössern in Berlin und Potsdam.
Im Zuge eines Verhandlungsverfahrens im Jahr 2010 erhielt das Architekturbüro Rüthnick Architekten aus Berlin den Zuschlag für die Realisierung des Umbaus des Südtorgebäudes. Der zweigeschossige Bau wurde unter Friedrich dem Großen nach Entwürfen von Carl von Gontard 1768/69 als Wachgebäude für das Neue Palais errichtet und gehört somit zum architektonischen Ensemble des Palais.
An der ursprünglich dreiflügligen Anlage erfolgten im Laufe der Jahrzehnte aufgrund wiederholter Nutzungsänderungen eine Vielzahl von Um- und Anbaumaßnahmen. Noch im 18. Jahrhundert wurden mehrere Anbauten im Hof errichtet und das Gebäude als Kastellanhaus umgenutzt. Hierbei erfolgten erste Veränderungen des friderizianischen Grundrisses. 1889 erhielt das Wachgebäude einen eingeschossigen Anbau an der Westseite, welches als „Kaiserliches Baubüro“ nach Entwürfen des damaligen Hofinspektors Franz Haeberlin errichtet wurde. Im 20. Jahrhundert dienten Teile des Gebäudes zu Wohnzwecken, als Büro- und Lagerfläche und in den 1950er Jahren sogar als Wäscherei.
Die ursprüngliche barocke Bausubstanz blieb jedoch über die Jahrhunderte weitestgehend erhalten.
Neue Besucherhalle und Eingangspavillon
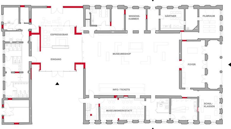
Durch das Hinzufügen eines Baukörpers zwischen dem Gontardschen Wachgebäude und dem westlichen Anbau, entstand ein neuer, nach Süden orientierter Eingangspavillon. Dieser bildet das Foyer des Besucherzentrums und ist Verbindungsglied zwischen dem zentralen Besucherbereich und den Servicebereichen im ehemaligen Kaiserlichen Baubüro. Der knapp acht Meter breite Pavillon ist in seiner Größe und Materialität aus Stahl und Glas bewusst zurückhaltend gestaltet worden und fügt sich behutsam in das historische Ensemble ein. Auf einer Fläche von 85 m2 befinden sich eine Espressobar mit einem kleinen, von einer Pergola eingerahmten Hof , sowie Garderoben und Schließfächer für die Besucher.
Der ehemals offene Innenhof des Gontardbaus wurde mit einer frei tragenden Stahlkonstruktion mit umlaufendem Lichtband überdacht. Die dadurch entstandene 270 m2 große Halle bietet Platz für den Empfang von Reisegruppen, den Ticketverkauf und den Museumsshop. Die angrenzenden Räume im Erdgeschoss beherbergen unter anderem eine „Wissenskammer“ in der den Besuchern mit Terminals individuell der Zugang zu den umfangreichen digitalen Informationen zu Geschichte, Park und Gebäuden möglich ist. Verschiedene Medienanwendungen, wie ein interaktives Touch-Table Modell des Parks Sanssouci, geben den Besuchern die Möglichkeit sich über die Sehenswürdigkeiten im Umfeld umfassend zu informieren.
Weiterhin gibt es Bereiche für die Museumspädagogik, Werkstätten und Aufenthaltsräume für das Personal.
Neue Anlagen für Heizung, Lüftung und Kabel wurden für die Besucher unsichtbar in einem schmalen als Installationsraum genutzten Bereich zwischen den historischen Außenwänden und dem neuen Hallendach untergebracht. Dazu gehört die Luftführung zu den Zu- und Abluftgittern, die Verkabelung der Hallenbeleuchtung, die Entrauchungsöffnungen und Rauchmelder.
Eine besondere Herausforderung war die Sicherstellung des Besucherkomforts im Bereich des überdachten Hofes. Eine Besonderheit des Hofs ist die komplexe thermische Kombination von Wärmelasten, die durch die Glasstreifen im Dach, die viel Licht aber auch viel Wärme herein lassen, entsteht. Temperatur und Luftverteilung wurden über eine komplexe thermische Strömungssimulation überprüft. Die Funktionsweise der technischen Lösung in Kombination mit der Dachverglasung ist durch moderne 3D Simulationsverfahren erfolgreich nachgewiesen worden. Die minimalistische Lüftungsstrategie hat wesentlich dazu beigetragen, den klaren Charakter des Raumes zu schaffen.
Denkmalgerechte Instandsetzung der Gebäudesubstanz
Die Aufgabe, das freistehende Baudenkmal zu einem zentralen Anlaufpunkt für Parkbesucher umzubauen, erforderte den Rückbau der Anbauten, die Konservierung historischer Raumfassungen, die Fassadensanierung und die Restaurierung der Fenster sowie historischer Wand- und Fenstervertäfelungen. Prämisse dabei war das Bauwerk unter höchstmöglicher Substanzschonung und unter der Einhaltung denkmalverträglicher Sanierungsverfahren für die neue Nutzung herzurichten.
Unter Berücksichtigung der historischen Bauforschung erfolgte die Instandsetzung der Bausubstanz und der Baukonstruktion nach den Vorgaben der Denkmalpfleger und Restauratoren der SPGS. Im Zuge der projektbegleitenden Bauforschung wurde eine Musterachse am Wachgebäude erstellt, um die Zusammensetzung der historischen Fassadenmaterialien zu ermitteln . Dabei gelangten Denkmalpflege und Planer zu neuen Erkenntnissen zur Dachkonstruktion des Gebäudes: Das Wachgebäude wurde ursprünglich zunächst mit einer Pultdachkonstruktion errichtet. Der restauratorische Befund im Bereich der Musterachse ließ jedoch deutlich erkennen, dass die Dachkonstruktion bereits kurze Zeit nach der Fertigstellung, circa im Jahr 1784, und nicht wie bislang angenommen, viel später ,zum heute vorgefundenen Satteldach umgebaut wurde. Aufgrund dieser Feststellung konnten die Ergebnisse der Bauforschung fortgeschrieben werden. Das Satteldach wurde als erhaltenswert eingestuft. Die historische Dacheindeckung mit Biberschwanzziegeln blieb ebenfalls weitgehend erhalten. Nicht erhaltenswerte Ziegel konnten durch historische Ziegel einer Berliner Kirche ergänzt werden. Als Besonderheit konnte der bauzeitliche friderizianische Dachstuhl aufgrund seines guten Zustands erhalten werden. Nicht mehr tragfähige Holzbalken wurden ausgetauscht.
Auch der Westanbau, das Kaiserliche Baubüro aus dem Jahr 1889, wurde substanzschonend nach den Vorgaben der Denkmalpflege von Grund auf saniert. Dieser Gebäudeteil beherbergt verschiedene haustechnische Bereiche und Sanitäranlagen für die Besucher.
Bauherr
Stiftung Preußische Schlösser und Gärten Berlin-Brandenburg(SPSG)
Wettbewerb
Zuschlag, Verhandlungsverfahren 2010
Planungsbeginn
2010
Realisierung
2011 - 2013
Leistung
LP 2-9
BGF
1.650 m²
Baukosten
5,63 Mio. €
Fotografie
Tomek Kwiatosz
- Architects
- SSP Rüthnick Architekten
- Any
- 2013
- Estat del projecte
- Construït
















