Wagenhallen
Innerer Nordbahnhof 1-3, Stuttgart, Germany
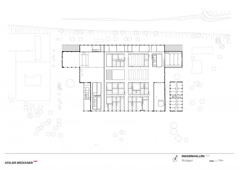
Die Wagenhallen Stuttgart präsentieren sich neu – mit historischem Charme. 1895 als Lokomotiv-Remise entstanden, wurden sie im Laufe ihrer gut 120-jährigen Geschichte unterschiedlich genutzt und mehrfach umgebaut. Inzwischen haben sich die Wagenhallen zu einem Brennpunkt der Stuttgarter Kunst- und Kulturszene entwickelt. Nach ihrer Ertüchtigung sind die Hallen als Ort für Konzerte und Veranstaltungen noch attraktiver geworden. Die ursprünglichen Nutzer, ein Kulturbetrieb für bis zu 2100 Gäste, ein Kunstverein mit 100 Mitgliedern sowie eine Tangoschule, ziehen nach dem Umbau wieder in die Hallen ein.
Die Gestaltungsidee und Raumkonzeption der Sanierung sind aus der ursprünglichen Nutzung des ehemaligen Lokschuppens abgeleitet. Die originäre Gestalt des Gebäudes wurde aus dem bestehenden Ensemble herausgeschält, die Originalsubstanz der Hallen behutsam restauriert und historische Spuren freigelegt. Die lebendigen Oberflächen bleiben erhalten, verschiedene Zeitschichten werden ablesbar und kontrastieren mit notwendigen baulichen Ergänzungen, die sich aus neuen Nutzungen ergeben.
Im Inneren ist das Raumbild geprägt von Stahlstützen und rhythmisierenden Oberlichtern. Diese wurden nach historischem Vorbild rekonstruiert und tragen zugleich der neuen Nutzung Rechnung. Mit Hilfe von drei flexiblen Trennwänden lässt sich die Fläche des Kulturbetriebs in bis zu vier kleinere Räume aufteilen – die Hallen sind so für unterschiedlichste Veranstaltungsformen ausgelegt.














