Weiterentwicklung einer Gutsanlage
Gut Hombusch, Mechernich, Germany
Leben und Wohnen für vier Generationen – Das denkmalgeschützte Gut Hombusch wurde 1908 nach Plänen von Paul Baumgarten für den Bankier Deichmann errichtet. Seit 1936 ist es im Besitz der heutigen Eigentümerfamilie, die von dort aus den umliegenden Wald bewirtschaftet.
Um den sich verändernden Anforderungen der jetzigen Bewohner (Barrierefreiheit, Altengerechtigkeit), der nun folgenden Generation (zusätzliche Wohnflächen, geschützte Spielbereiche) und des sich weiterentwickelnden Forstbetriebes (zusätzliche und besser ausgerüstete Büro- und Betriebsflächen) gerecht werden zu können, wurden die bestehenden Gebäude in umfangreichen Studien auf bauliche Entwicklungsmöglichkeiten untersucht. In Abstimmung mit der Denkmalpflege wurde darauf aufbauend ein langfristiges Umbaukonzept entwickelt, das durch denkmalverträgliche Eingriffe und Reaktivierung bis dahin nicht oder minderwertig genutzter Räume Platz schafft für das zeitgemäße Wohnen und Arbeiten für vier Generationen.
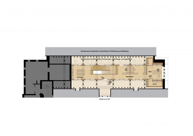
Im Fokus der Umbauten lag dabei die ehemalige Remise mit ihren weitgehend ungenutzten Flächen unter dem großen Schieferdach auf der Nordseite der Hofanlage. Gefragt waren möglichst geringe und schonende Eingriffe in die denkmalgeschützte Substanz, gleichzeitig standen hier dringende bautechnische Sanierungsmaßnahmen zur Rettung der vorhandenen Konstruktionen an.
Eine sorgfältig in die Bestandsstruktur eingefügte Treppenanlage in den ehemaligen Pferdeställen im Mittelrisalit ermöglichte den Einbau neuer Büroräume unter dem Dach (»Arbeitsspeicher«). Diese sind nach dem »Haus-im-Haus« Prinzip errichtet. Konstruktion und Hülle des Neubaus wurden konsequent vom Bestand getrennt, das beheizte Volumen und bauphysikalische Schwachpunkte so auf ein Minimum reduziert. Der zwischen bestehender Dachkonstruktion und dem Einbau entstandene Raum dient als Klimapuffer und kann als temporäre Erweiterungs-, Ausstellungs- und/oder Lagerfläche genutzt werden. Der längsgerichtete und weitgehend verglaste Baukörper läßt sich dazu großflächig öffnen. Zur Belichtung und Belüftung des Hauptraumes werden hofseitig die bestehenden Gauben genutzt, nordseitig wurden zusätzliche einfache Dachluken eingebaut. Nach Osten wurde ein Büroraum abgetrennt, der über neue Durchbrüche in der vorhandenen Fachwerkwand des Giebels belichtet wird. Im Bereich der vorhandenen Gaube entsteht ein »Wintergarten« für Besprechungen und Arbeitspausen mit Ausblick in den Hof.
Durch die neugeschaffenen Büroflächen wurden im Westtrakt Räume frei für eine neue, ebenerdig gelegene altersgerechte Wohnung, im Südtrakt konnten ursprüngliche großzügigen Raumfolgen wieder hergestellt und zeitgemäße Küchen eingefügt werden.
Ein ergänzenden Schuppen in einfacher Holzbauweise beherbergt die PKW Stellplätze, so daß der Hof zukünftig (wieder) als Treffpunkt für alle Generationen fungieren kann. Ein Wasserreservoir für die Feuerwehr wurde unterhalb des neuen Garagengebäudes geschaffen.
- Architects
- lüderwaldt architekten
- Any
- 2020
- Estat del projecte
- Construït
- Equip
- Lisa Lippe, Felix Engelhardt
- Statik, Bauphysik, Brandschutz
- Gotthardt+Knipper _ Ingenieurgesellschaft mbH_Beratende Ingenieure
- Rohbau und Infrastruktur
- Dederichs GbR Bauunternehmung
- Holzkonstruktionen
- Holzbau Erulin
- Türen, Fenster, Innenausbau
- Schreinerei Bayard
- Putz, Anstriche, Beschichtungen
- farbecht Maler GmbH







































