Wohn- und Geschäftshaus «Kreisel Chotten»

Mauensee, Switzerland
Fotografia © Thomi Studhalter

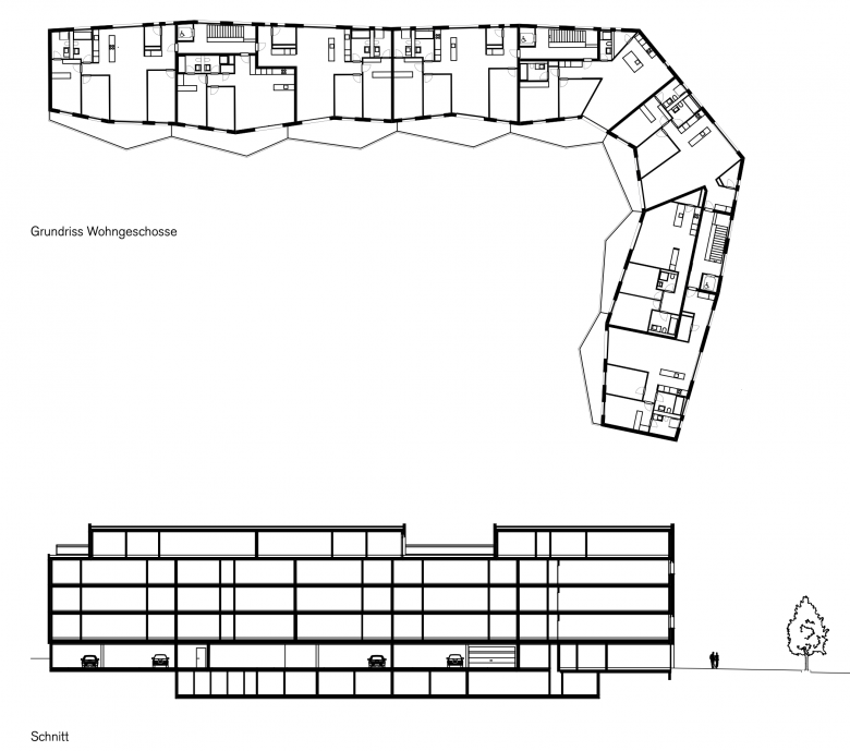
Am westlichen Rand der Gemeinde Sursee gelegen setzt die Wohnüberbauung beim Kreisel Chotten einen markanten Punkt in das zentrale Quartier. Elegant nimmt es auf der Eckparzelle seinen Platz ein. Das winkelförmige Gebäude reagiert auf die stark frequentierte Strassenkreuzung mit raffinierter Architektur und verleiht dieser einen urbanen Charakter.

Das Sockelgeschoss auf Strassenniveau beherbergt die Einstellhalle und die notwendigen Nebenräume sowie zum Kreisel gerichtet eine gewerbliche Nutzung in Form einer Galerie.

Die Obergeschosse dienen vollumfänglich einer Wohnnutzung. Die 3.5 und 4.5 Zimmerwohnungen werden über drei separate Treppenhäuser erschlossen. Die Eigentumswohnungen bieten auf der von der Strassenseite abgewandten Seite grosszügige Balkone zu einer attraktiven Hofzone mit viel Grünfläche.
Die Fassade mit Alucobondplatten und Betonelementen verkleidet, rundet das repräsentative Erscheinungsbild strassenseitig ab.

Fotografia © Thomi Studhalter
Fotografia © Thomi Studhalter
Fotografia © Thomi Studhalter
Fotografia © Thomi Studhalter
Dibuix © CAS Architektur AG
Architects
CAS Gruppe AG
Any
2015
Estat del projecte
Construït

Projectes relacionats 

  • Moos
    playze
  • Reiters Reserve Premium Suiten
    BEHF Architects
  • Erweiterung und Instandsetzung Hallenbad Altstetten
    MIYO Visualisierung
  • Neubau von fünf Einfamilienhäusern
    Bäumlin+John AG
  • The Forge in der 105 Sumner Street in London
    Kiefer Klimatechnik GmbH

Revista 

Altres projectes per CAS Gruppe AG 

Pavillon «Ds Griänä Hüüs»
Altdorf, Switzerland
Wohnen im Alter «Weisses Kreuz»
Flüelen, Switzerland
Wohnen im Alter «Burgfeld»
Dagmersellen, Switzerland
Mehrfamilienhaus «Schlossberg»
Willisau, Switzerland
Lofthäuser Menzbergstrasse
Willisau, Switzerland