Wohn- und Geschäftshaus Sue&Til
Else-Züblin-Strasse / Sulzerallee / Ida-Sträuli-Strasse, Winterthur, Switzerland
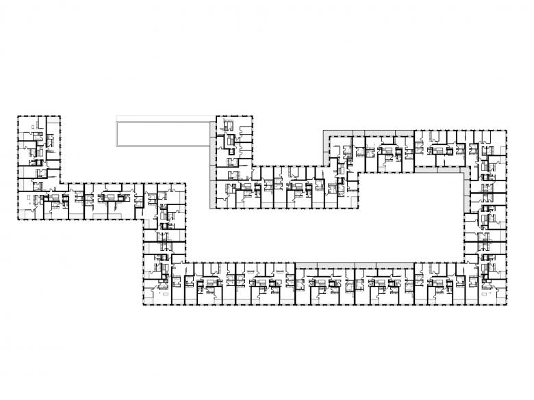
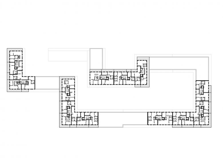
Mit dem Studienauftrag soll eine Wohnüberbauung mit ca. 300 Wohnungen und Gewerbeflächen im Erdgeschoss geplant werden. Ein übergeordnetes Regelwerk (Hybrid-Cluster-Bebauung) definiert die baurechtlichen Rahmenbedingungen. Mit dem Zusammenschluss zu einer Grossform wird ein maximaler, frei zu bespielender Innenhof erzeugt. Dieser dient der neuen Bebauung als identitätsstiftendes Element. Durch eine Staffelung der hinteren Gebäudezeile wird erreicht, dass sich das Gebäude gut in den nachbarschaftlichen Kontext einordnet. Einschnitte in den oberen Geschossen gliedern den Gebäudekörper und bilden attraktive Terrassenwohnungen auf unterschiedlichen Geschossen. Einschnitte im Erdgeschoss markieren die beiden Plätze mit ihren gewerblichen Nutzungen und verbinden diese untereinander. Die Wohnungstypen sind direkt aus der Schnittfigur mit den unterschiedlichen Gebäudetiefen abgeleitet und daher durch ihre Lage im Gebäudekörper geprägt. Sie folgen dem Prinzip einer freien Raumfigur, welche die gemeinschaftlichen Bereiche aufnimmt. Durch ein angeschlossenes, offenes Zimmer erfahren sie jeweils eine räumliche Erweiterung. Kombiniert mit einer Raumhöhe von 2.65 Metern entwickeln die Wohnungen so eine Grosszügigkeit. Dieses Grundprinzip wird an unterschiedliche Aussenräume geknüpft, wodurch eine Vielzahl an Wohnungstypen entsteht.
- Architects
- SOPPELSA ARCHITEKTEN
- Any
- 2018
- Estat del projecte
- Construït
- Equip
- In Zusammenarbeit mit weberbrunner architekten ag























