Wohn- und Tagesstätte «Autismus Wyden» Brühlgut Stiftung, Winterthur im Standard Minergie-P®
Euelstrasse 52d, Winterthur, Switzerland
Für die Brühlgut Stiftung realisierte RLC das neue Wohnhaus auf dem Areal Wyden für Menschen mit Autismus-Spektrum-Störung. Ziel der Bauherrschaft war es, mit dem Neubau ein Angebot zu schaffen, das die besonderen Bedürfnisse der Bewohner*innen in Bezug auf Sicherheit und Selbstständigkeit berücksichtigt und ihnen einen selbstbestimmten Alltag ermöglicht.
Der Neubau, mit einer einfachen und kubischen Volumetrie, komplettiert das Areal und bildet einen Übergang vom Siedlungsgebiet zur Landwirtschaftszone. Das Gebäude ist ausgestattet mit einer kontrollierten Wohnraumlüftung und einer PV-Anlage. Die Heizung erfolgt mit Fernwärme. Der naturnah gestaltete Garten bietet durch Hecken und Sträucher unterschiedlich angelegte Zonen mit vielfältigen Nutzungs- und Aufenthaltsmöglichkeiten.
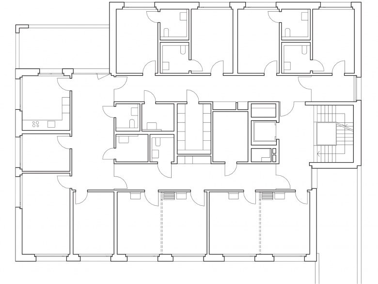
Im Inneren wurden bewusst reizarme und robuste Materialien eingesetzt. Die dezente Farbgebung und der Einsatz von Holz erzeugen eine beruhigende und wohnliche Atmosphäre. Auf jedem der drei Geschosse befindet sich eine 4er-Wohngruppe. Alle Zimmer verfügen über einen Ausblick zur Landwirtschaftszone und ein eigenes Bad. Dazu gehören Gemeinschaftsräume für Kochen, Essen und Wohnen sowie Ateliers, ein Fitness- und Therapiebereich und Büros für das Betreuungspersonal.
- Architects
- RLC Architektur, Projektentwicklung
- Any
- 2024
- Estat del projecte
- Construït














