Wohnen am Herbert King Park
Rheinfelden, Germany
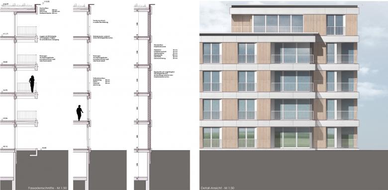
Realisierungswettbewerb ‚Wohnen am Herbert-King-Park‘ in Rheinfelden (Baden)
2019, 2. Preis
- Architects
- Jakub Pakula Architektur
- Any
- 2019
- Estat del projecte
- Disseny
- Architektur
- Pakula & Fischer Architekten GmbH













