Wohnhaus Deitingen
Der Neubau bildet den Abschluss der gebauten Struktur und definiert über die Strasse hinweg mit der gegenüberliegenden Schreinerei und den benachbarten Wohnbauten einen gemeinsamen Hof: einen Begegnungsraum für die ganze Nachbarschaft. Von der Strasse abgekehrt entsteht ein privater Aussenraum, am Bach mit Blick in die Natur.
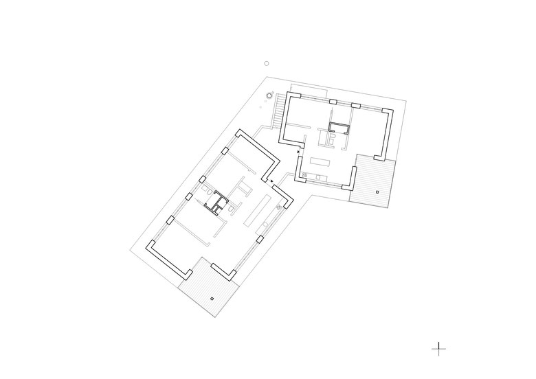
Auf einem Betonfundament und unter einem Satteldach stehen die beiden Holzkuben mit einspringender Ecke abgewinkelt zueinander. Der Zwischenraum bildet die Eingangsbereiche. Durch das Aufbrechen und Abwinkeln des Volumens entstehen Räume und Proportionen, die der kleinteiligen Umgebung entsprechen. Trotz der hohen Dichte haben die Bewohner durch die Trennung in zwei Volumen je ein eigenes Geschoss für sich. Im Zentrum der Wohnungen liegt der gegen Süden und zum «Hof» hin orientierte Essbereich, um den alle Zimmer angeordnet sind. Materialien in ihrer rohen Form bestimmen das Bild. Aussen wird das Gebäude durch die natürliche Alterung der unbehandelten Holzfassade im Laufe der Zeit immer mehr zu einem Teil seiner natürlichen Umgebung werden. Zwei Obstbäume wurden verpflanzt und in die neue Umgebung integriert. Ein Kirschbaum musste dem neuen Haus weichen, er wurde nur wenige Meter neben seinem angestammten Platz wieder aufgerichtet. Er trägt mit seinen Ästen das Dach.
- Architects
- Luna Productions
- Any
- 2018
- Estat del projecte
- Construït
- Equip
- Nadja Frei, Lukas Frei
- Ingenieurbüro
- spi Planer und Ingenieure AG















