Wohnüberbauung Langgasse
Winterthur, Projektwettbewerb auf Einladung 2015, 1. Rang, Switzerland
Bauherrschaft: Migros Pensionskasse, Schlieren
Landschaftsarchitektur: Albiez De Tomasi GmbH, Zürich
Bauvolumen: 8 Mio. CHF
22 Mietwohnungen, Minergie Standard
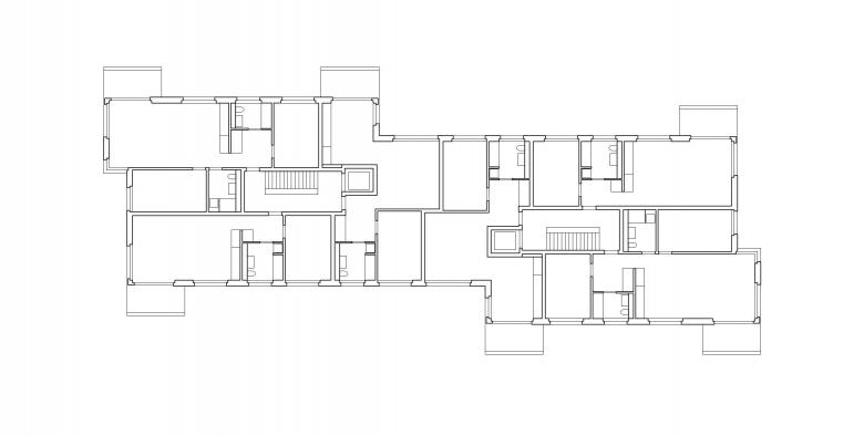
Die ortsbauliche Struktur der näheren Nachbarschaft ist stark geprägt durch die steile Hanglage des Heiligbergs. Innerhalb des Stadtkörpers markiert der Hang den Übergang vom mehrheitlich von Einfamilien- und Reihenhäusern geprägten Hügelrücken des Büelquartiers, hinunter zur in der Ebene liegenden Langgasse. Die Strassen des Langgassenquartiers sind gesäumt von grossmassstäblichen Mehrfamilienhäusern, welche zumeist strassenbegleitend angeordnet sind. Der neue Baukörper wird dementsprechend in gleicher Art parallel zur Langgasse angeordnet. Der Hangverlauf, wie auch die Lage des bestehenden Mehrfamilienhauses definieren die Setzung des neuen Baukörpers. Die Staffelung sowohl in vertikaler wie auch in horizontaler Richtung bricht dessen Länge und Höhenentwicklung, und hilft diesen selbstverständlich in die gewachsene Quartierstruktur einzubinden.
Die Erschliessung bindet auf spannungsvolle Art die verschiedenen Ebenen mit den jeweiligen Nutzungen und Aussenbezügen sowie die beiden Treppenhäuser zusammen. Der räumliche Reichtum der Erschliessungsfigur ermöglicht den Bewohnern eine hohe Identifikation mit dem Haus und dem speziellen Ort.
Das Gebäude kann entweder über einen ebenerdigen Zugang im Parkierungsgeschoss oder eine attraktiv gelegene zweiläufige Rampe im Aussenraum erreicht werden. Der Haupteingang befindet sich auf dem obenliegenden Erdgeschoss. Über eine zweiteilige innere Halle sind die beiden Treppenhäuser mit den gegenläufigen Treppen erschlossen. Der hintere Teil der Eingangshalle ist zweigeschossig und sowohl vom nordseitigen Eingang her wie auch über ein hochliegendes Fensterband natürlich belichtet.
Durch die verschiedenen Gebäudeversätze und die Anordnung der Wohnungen im Grundriss wird erreicht, dass ein Grossteil der Wohnungen dreiseitig orientiert sind und von unterschiedlichen Ausblicken und Besonnungssituationen profitieren können.
Bei den stirnseitig angeordneten Wohnungen gelangt man vom Entrée mit Garderobe und anschliessender Nasszelle in den sich parallel zur Fassade erstreckenden Ess- und Wohnraum, welcher in einem über Eck laufenden Balkon mündet. Die beiden mittleren Wohnungen profitieren von einer mehrseitigen Orientierung vom Versatz des Baukörpers. Ein fliessender Raum ist in Entrée, Wohnraum und Wohnküche zoniert. Alle Bäder sind natürlich belichtet und können mit einem Waschturm ergänzt werden.
- Architects
- Zimmermann Sutter Architekten AG
- Any
- 2020
- Estat del projecte
- Construït
- Equip
- Andreas Zimmemann, Gisela Radunsky, Toni Götz





















