Zentrumsentwicklung Geroldswil
Geroldswil, Switzerland
Geroldswil zeigt sich als typisch spätmoderne Satellitenstadt, die in der Hochkonjunktur der 1960- bis 1970-Jahre anstelle eines ehemaligen Weilers erbaut wurde. Der Doktrin der Spätmoderne entsprechend, prägt eine klare Funktionstrennung zwischen Erschliessungsstrassen, Zentrumsfunktionen und Wohngebieten den öffentlichen Raum. Auffallend und aus unserer Sicht auch als Qualität verstanden, ist die unveränderte Authentizität dieses Zeitzeugen.
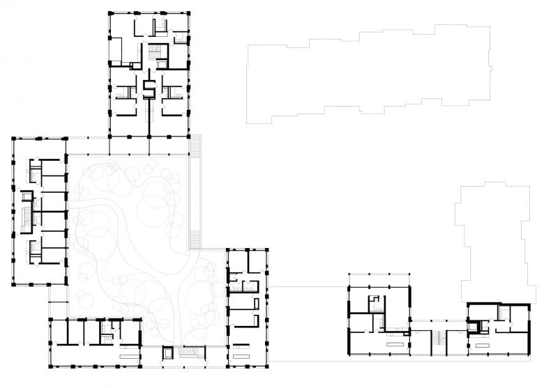
Die Volumen der Neubauten sind so gesetzt, dass ein offensichtlicher Bezug zum bestehenden Zentrum entsteht. Ein flaches Hofhaus bildet, zusammen mit einem höheren Platzhaus, den neuen Stadtplatz. Das Platzhaus nimmt in seiner Grundfläche und Höhe direkt Bezug zum diagonal gegenüberliegenden bestehenden Stadthotel und entlastet das für eine Zentrumsbildung wenig geeignete, weiter östlich an der Huebwiesenstrasse liegende Wohnhaus von einer Platzfunktion. Das bestehende Stadthotel und das neue Platzhaus markieren eindeutig sichtbar das neue Stadtzentrum in der Flucht der Huebwiesenstrasse.
Das Projekt baut seine Identität über drei neue Aussenraumtypen auf. Das Herzstück des neuen Zentrums bildet ein quadratischer Stadtplatz. Dieser manifestiert als explizite Referenz an den bestehenden Dorfplatz die Erweiterung des Zentrums und erzeugt in seiner Ausgestaltung eine offene, leere, nur durch einen Brunnen zentrierte Mitte. Ebenso wichtig ist das Boulevardstück mit dem Platanenhain als räumlicher Filter zwischen dem Stadtplatz und der Limmattalstrasse. Das dritte Element ist ein Gartenhof als Mitte der neuen Wohnbebauung mit seinen Laubenfenstern zur Stadt auf dem Sockel des Grossverteilers. Neben den Zugängen aus den Treppenhäusern ist der Gartenhof auch über eine kleine Freitreppe auf der Ostseite des Stadthauses zugänglich.
- Architects
- Baumberger Stegmeier Architektur
- Any
- 2020
- Estat del projecte
- Construït
- Client
- Politische Gemeinde Geroldswil












