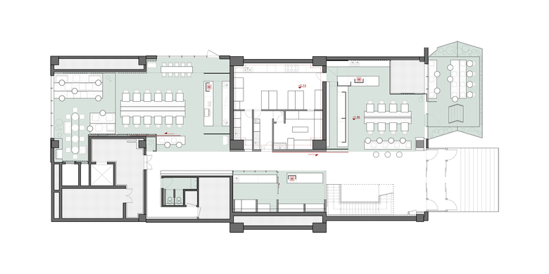
GREEN OPTION / FOOD COURT
The whole concept rotates around the idea of serving healthy food, providing sophisticated yet informal seating settings with soft chairs, benches and places for gathering, laying down and relaxing with friends. Each room offers a different functional program. Café, restaurant, cocktail bar and an external patio are all served by a central kitchen and organized along a backbone corridor where an open display bakery is facing. In some much smaller rooms we managed to get a bathroom, a small office and two storage/technical rooms. The project develops a design strategy that aims to sew up the randomly fragmented spaces on first floor of a multifunctional building, while taking advantage of the articulated layout for organizing the new functions.
Design team RAMOPRIMO
Architects Marcella Campa, Stefano Avesani, Lisa Montanari, Sara Scotti, Huo Ran 霍燃, Giacomo Squaquara
Location Beijing, China
Function café, restaurant, bakery
Area 360 sqm
Type Built
Client Private
Furniture design Operagamma / Ramoprimo
Fabric Irsun
Contractor Beijing Huayishengze Decorate Engineering Co., Ltd (北京华艺圣泽装饰工程有限公司)
On-site manager Yuan WenJie (袁文杰)
Engineering Yuan ZhiFeng (袁志锋)
Photo credits RAMOPRIMO
Year 2019
- Any
- 2019
- Estat del projecte
- Construït



























