Bürohaus Andreasgasse
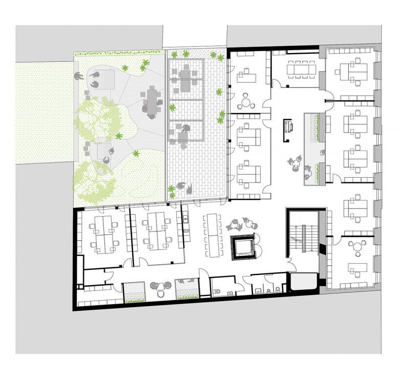
Inmitten einer, an die pulsierende Mariahilfer Straße angrenzenden Schutzzone, vis-á-vis des Andreasparks, entstand im Zuge der Erweiterung der Firmenzentrale der Sozialbau AG aus einem abbruchreifen historischen Bestand ein innovatives Bürogebäude. Das ehemalige Wohnhaus wurde hofseitig bis zur Mittelmauer abgebrochen und durch einen L-förmigen Neubau erweitert. Das entstandene Bürohaus fügt sich straßenseitig je nach Entfernung unterschiedlich wahrnehmbar in den Bestand ein. Vorgelagerte fixe Sonnenschutz-Lamellen in der Farbe der umgebenden Dächer, sowie Pflanzregale vor der verglasten Fassade des Dachgeschosses lassen den Dachausbau optisch in den Hintergrund treten. Die sich je über zwei Geschoße erstreckenden Büroabteilungen, verbunden durch Deckenöffnungen, Treppen und Bepflanzungen, fördern die soziale Interaktion innerhalb des gesamten Gebäudes. Layout, Farbe und teilweise wiederverwendete Materialien differenzieren klar die Bereiche der neuen Arbeitswelten: Von einer lebendigen, multifunktionalen Mittelzone für informelle Treffen, über geschlossene Räume für Teambesprechungen bis hin zu ruhigen Arbeitszonen. Durch die bepflanzten Lamellen an den Verglasungen im Dachgeschoß und im begrünten Innenhof wird die sommerliche Überhitzung reduziert. In Balance zwischen baulichem Erbe, modernsten Ansprüchen sowie sozialer und gestalterischer Interaktion, fungiert das Bauwerk als Beispiel einer nachhaltigen, zukunftsfähigen Revitalisierung mit zeitgemäßen Büroräumlichkeiten.
NGF 3.338 m²
- Any
- 2021
- Estat del projecte
- Construït
- Client
- Sozialbau AG, EGW Erste gemeinnützige WohngesmbH
- Equip
- Otto Arnold, Christof Mathes, Stefan Münster, Manfred Scheiblreiter, Katharina Wörgötter
- ÖBA
- Projektbau GmbH
- Tragwerksplanung
- Harrer & Harrer ZT GmbH
- Freiraumplanung
- DnD Landschaftsplanung ZT KG
- Generalunternehmer
- PORR Bau GmbH















