Umbau und Umnutzung Head Office Monami
Anyone who has passed by the corner of Langstrasse opposite the 25hours Hotel in the past few months has surely noticed it. The repurposing of a former nursing home at Langstrasse 119 has given rise to the restaurant "Spät," or sometimes also "Action Burger," but new developments have also emerged above the ground floor. All part of the concept by the real estate innovator, Immobilienkosmos. New office spaces are being created on the upper floors, along with a restaurant and an audio studio in the vibrant heart of Langstrasse.
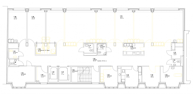
It's precisely the right environment for the emerging PR agency, Monami, which is young, lively, and creative. The team will utilize the first floor of the former nursing home as an office for 25 employees for the next five years. In over 400 square meters, a spacious and creative workspace is taking shape in a former room of the nursing home. It aims to support the agency in generating its content in all colors and forms, be it for social media, strategy, consulting, or campaigns. An exciting task for Raumtakt.
Workplace: Transforming the Offices
Because Monami primarily creates new content for modern channels, one of the main objectives was to eliminate the "vibe" of the nursing home. White ceiling lights, hospital doors, linoleum flooring – Raumtakt broke away from this aesthetic, infusing it with lots of colors. The cubicle-like rooms were transformed into an open-plan office with wall openings.
However, there are still enclosed rooms on the side for privacy, suitable for meetings or after-work drinks. The windows of these rooms open directly onto the lively Langstrasse and the 25hours Hotel. The color-coded doors indicate the purpose of each room, reflecting Monami's corporate identity. Some rooms were painted in a monochrome fashion, with pops of color placed in specific areas, refreshing the remaining white walls. This makes the new Monami office colorful but still restrained, ready to be animated by the Monami team.
Swift Implementation, Transparent Costs
The project could only be realized within this short timeframe through flexible contractors and rapid decision-making. Breakpoints were highlighted to give character to the expansion and, not least, to reduce costs. The aspect of interim use also played a significant role in the renovation.
In the former nursing home room, a spacious and creative workspace of over 400 square meters was created. The rooms and signage are aligned with the colors of the Monami logo. In this project, Raumtakt followed its philosophy of the circular economy: building components, lights, or glass are intended to be reused in the design concept. Raumtakt aims to conserve resources and promote circular construction through efficient project management.
- Any
- 2021
- Estat del projecte
- Construït
- Client
- Monami AG
- Equip
- Stefan Müller, Simona Raschle
- Maler- und Schreinerarbeiten
- aftermidnight
- Elektroinstallationen
- Reich + Nievergelt AG
- Abbrucharbeiten
- ARIHA AG



















