Überbauung Samiweg
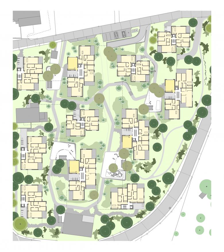
Das Grundstück ist dreiseitig von Kantonsstrassen umgeben und entsprechend lärmbelastet. Dazu kommt die schwierige Situation als «Baulücke» zwischen einem oberen Dorfteil mit Einfamilienhäusern und dem eigentlichen Dorfkern unterhalb des Baufeldes. Damit nicht genug: seitlich ist die Siedlung
exponiert und offen zur weiten Landschaft. Umfassende Konzeptstudien führten zur Lösung mit mehreren Bauten, die in sich versetzt und hangaufwärts gestaffelt sich mit den bestehenden Dorfteilen und Gebäudegrössen ortsplanerisch gut
vertragen. Seitlich bleiben die Zwischenräume offen und das Gelände fliesst dadurch seitlich «durch» die Siedlung ohne eine klare und allzu starke Begrenzung zu schaffen. Die Wohnungsgrundrisse sind, dem ländlichen Raum und Lebensweise angepasst, eher klassisch, mit klarem Bekenntnis zum Wohn- und Essraum an den Gebäudeecken. Diese Anordnung ergibt diesen Räumen grösstmögliche Weite und Offenheit, Licht und Besonnung. Trotz der Grösse der Überbauung (100 Wohnungen) wirkt sie mit den versetzten und gestaffelten Bauvolumen sowie mehreren «Innenhöfen» kleinteilig und massstäblich. Die Anlage vermittelt Geborgenheit in und ausserhalb der Gebäude und ist dennoch offen zur Weite der Landschaft. Der Lärmproblematik wurde auch in dieser Siedlung mit entsprechender Anordnung der Bauten und der Ausrichtung der Wohnräume begegnet. Mit dem gewählten Konzept kann laut bauphysikalischen Berechnungen trotz der Strassennähe auf Lärmschutzwände verzichtet werden.
- Any
- 2017
- Estat del projecte
- Disseny



