Haus und Atelier Meier
Video © Russ Winfield
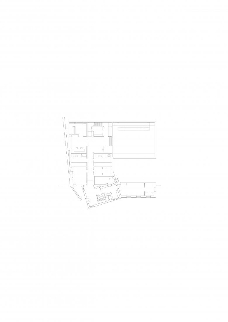
Das Projekt stellt sich einerseits die Frage nach der Massstäblichkeit und andererseits dem Umgang mit offenen Flächen in unmittelbarer Nähe zu den historischen Gärten. Das Bauvolumen wurde auf zwei verschiedenartige Gebäude verteilt um dem Projekt eine massvolle Grösse zu geben und eine organische Einbettung ins historische Siedlungsgeflecht zu ermöglichen. Die Architektur soll diskret wirken und der gestalteten Umgebung den Vorrang lassen. Die Mauern, welche die Aussenfläche umschliessen, nehmen das Thema der historischen Gartenmauern des benachbarten Palazzo Salis auf. Holzgatter ähnliche Türen schaffen eine Verbindung zwischen den beiden Anlagen und verhindern so eine Kollision zweier Systeme.
- Any
- 2003
- Estat del projecte
- Construït
- Client
- Raymond Meier

















