Wohnungsbau Ried Baufeld A
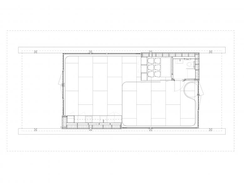
Das Baufeld A der Wohnsiedlung Ried ist das erste Baufeld und liegt somit am Eingang des Areals, daher nimmt es städtebaulich eine besondere Rolle ein. Zwei lange Volumen stehen versetzt zueinander auf dem Baufeld und bilden eine starke Zweiseitigkeit; jeder Baukörper hat eine Seite direkt am Grünen und grenzt auf der anderen an eine Begegnungszone, die das gesamte Baufeld erschliesst.
Die beiden Volumen weisen unterschiedliche Charakteristiken auf, so ist jenes an der Ringstrasse ein Vermittler zwischen den umliegenden Gebäuden und akzentuiert den Eingang zur Siedlung, während der zweite Baukörper etwas abgewinkelt ist und als Haus am Waldrand gelesen wird.
Dank der Ost-West-Ausrichtung können im Grundriss die Wohnbereiche beidseitig ausgebildet werden, wodurch die unterschiedlichen Qualitäten der Umgebung zum Wohnerlebnis beitragen. Die Idee kommt direkt aus dem Masterplan: Jeder wohnt am Grünen. Neben dem Blick in die Weite bietet sich den Bewohnern auch die Aussicht auf die Begegnungszone des Baufelds mit seinen gemeinschaftlichen Quartierfunktionen.
- Any
- 2020
- Estat del projecte
- Construït
- Client
- Fambau Genossenschaft & Pensionskasse Gemeinde Köniz
- In Zusammenarbeit mit
- Hildebrand Studios AG



















