Instandstellung Alterssiedlung Dufourstrasse
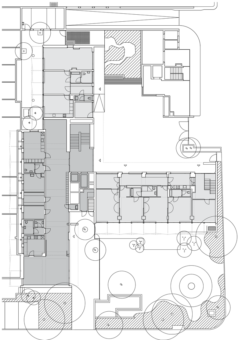
Über den Raster der Schottenbauweise hinweg werden in einem Betonbau der 1960er Jahre 51 ineinander verzahnte Alterswohnungen gestaltet. Die neuen Wohnungen erlauben den Rückzug in eine ungestörte Privatsphäre, eröffnen aber auch Raum für spontane Kommunikation mit den Nachbarn. Dieses gemeinsame Leitmotiv bestimmt Grundrisse wie Fassaden. An die Stelle des Gegensatzes von Vorder- und Rückseite tritt eine zweiseitige Orientierung. Essbereiche grenzen an die Laubengänge, welche mit einer bepflanzten Geländerstruktur den Charakter von Vorgärten annehmen.
Auch die neue Balkonschicht auf der gegenüberliegenden Seite wird zum mehrfach interpretierbaren Raumgerüst: Jeder Balkon umfasst einen privaten Teil, der mit beweglichen, textilen Elementen vor Sonne und Einblicken geschützt werden kann. Daneben entstehen mehrgeschossig zusammenhängende Bereiche, welche die Belichtung verbessern und Beziehungen zu darüber- oder darunterliegenden Wohnungen eröffnen.
Programm
Instandstellung mit Energiesanierung, Wohnungszusammenlegungen, neuer Balkonschicht. Insgesamt 51 Alterswohnungen, Krippe, Hort und Spitexräumlichkeiten
- Any
- 2011
- Estat del projecte
- Construït
- Client
- Stiftung Alterswohnungen der Stadt Zürich (SAW)
- Equip
- Jens Studer, Urs Primas, Ladina Esslinger, Kaspar Helfrich, Danijela Jovicic, Jürg Keller, Marco Kistler, Susanne Kothe, Asal Mohtashami, Oliver Schuh, Shohre Shafie, Thai Tran, Felipe Valadares, Franziska Schneider
- Landschaftsarchitekt
- Lorenz Eugster Landschaftsarchitektur und Städtebau GmbH
- Baumanagement und Kosten
- BGS Architekten & Partner AG
- Bauphysik
- BWS Bauphysik AG
- Haustechnik
- 3-Plan Haustechnik






