a-Ap
綾瀬駅の北西側は駅と並行に帯状に商業エリアが伸び、それに隣接して低層の住宅街が広がる。住宅街の中心には觀音寺と稲荷神社が配置され、周辺の道路にはインターロッキングが敷かれていることで、エリア全体が穏やかな雰囲気である点が特徴的である。本計画の敷地はこのエリアの中の、ある行き止まりの路地に接している3戸の小さな長屋の計画である。
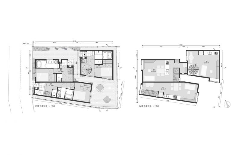
行き止まりの路地はこれに接する数件の住宅に住まう人たちの領域とも言え、半ばプライベートなスペースだ。この路地を敷地内に延長させ、周囲の街並みに倣いインターロッキングを敷き、それに隣接するように3戸のメゾネット住戸を配置した。各住戸は独立性を高めつつ、この路地に様々な仕方で関係し、敷地の奥に行くに従って徐々にプライバシーが高まる状態を模索した。
この長屋は、壁やオートロックで各々のスペースを分断してプライバシーを保ち、効率よく住戸を並べる集合住宅ではない。住戸が路地や庭に開き様々に関係しながらもそれらの配置や開口の開け方、植栽によって互いに程よい距離を保ち、部分的にはシェアすることで、住み手の住まいとしての意識が住戸の外に広がる状態を目指した。
- Any
- 2024
- Estat del projecte
- Construït























