Erweiterung Gymnasium Hofwil
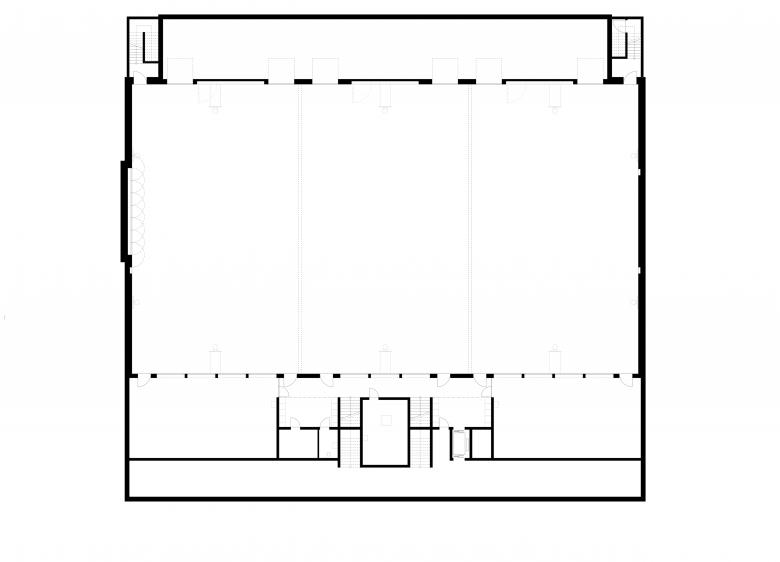
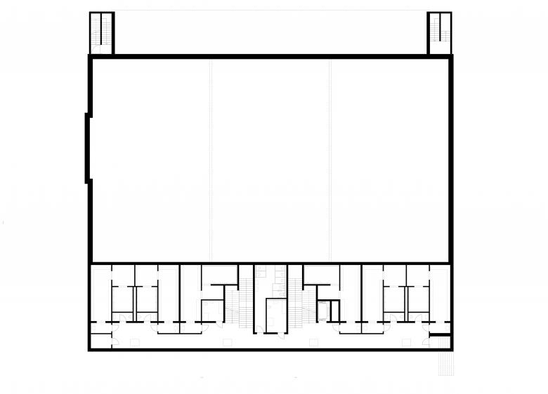
Die historische Anlage von Hofwil, liegt auf einer Hügelkuppe umschlossen von Landwirtschaftsland. Das ehemalige Lehrerseminar mit seinem Hauptbau ist von weither sichtbar. Auffallend ist die orthogonale Anordnung der Gebäude an der von Norden nach Süden verlaufenden Erschliessung, gesäumt von einer Baumallee. Die parkähnliche Anlage besteht aus einer Abfolge von unterschiedlichen Aussenräumen, welche durch den angrenzenden Wald, die Gebäude und die markanten Bäume definiert werden. Das alte Schulgebäude ist der Hauptbau der Anlage, der weit in das angrenzende Wiesenland ausstrahlt.
Die Erscheinung der Neubauten ordnet sich den historischen Bauten unter und tritt mit diesen in einen Dialog. Als vermittelndes Material zwischen den Neubauten und den historischen Bestandsbauten werden die Neubauten in Holz materialisiert. Über eine feine Gliederung, Proportionierung und Tiefenwirkung werden die grossen Neubauten in die geschützte Parkanlage integriert; ein Zusammenspiel von Bauwerk und Natur.
Ziel der Planung sind neue Gebäude mit maximal reduzierter Technik: Low Tec die Basis und „einfach Bauen“ das Programm. Mit zwei weiteren Architekurbüros aus Biel formieren wir dafür eine Arbeitsgemeinschaft. Das Wissen und die Arbeit werden auf mehrere Personen und Unternehmungen verteilt. Mit gemeinsamen Werten und gegenseitiges Vertrauen arbeiten wir am gemeinsamen Ziel: Ein Schulhaus, das sich an den Gesetzen von Natur und Physik orientiert und unseren Lebensraum wieder spürbar macht.
- Any
- 2024
- Estat del projecte
- En construcció
- Client
- Amt für Grundstücke und Gebäude des Kantons Bern
- Equip
- :mlzd, 0815 Architekten, extrā Landschaftsarchitekten AG, Baukonstrukt, Indermühle Bauingenieure, Marcel Rieben Ingenieure AG, Schlosser AG, Lenum AG





