Umbau und Kernsanierung eines Fertighauses
In der Gemeinde Grabenstetten auf der Schwäbischen Alb mischen sich alte Bauernhäuser mit Einfamilienhäusern ab den 1960er-Jahren. Mein Auftrag war, ein 1978 erbautes Fertighaus umzugestalten und dabei die Energiebilanz zu verbessern. Die zweite Generation der Eigentümer wollte das Haus übernehmen und von der Stadt zurück aufs Land ziehen. Für den Senior sollte eine Einliegerwohnung entstehen.
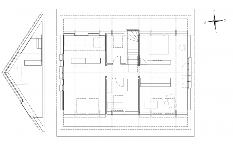
Im Fertighausbau wird mit minimalen und eng gereihten Profilstärken gearbeitet. Das Dach erwies sich daher überraschenderweise als ein Sparrendach mit weit auseinander stehenden hohen Sparren, das einen durchgehenden Raum bildete. Mit dem Umbau sind die einst kleinen Dachzimmer einem großzügigen und klaren Entwurf gewichen und der Raum ist wieder als Ganzes wahrnehmbar. Der gesamte Dachaufbau wurde auf die Sparren gelegt, sodass die Raumhöhe maximal ist und die Konstruktion sichtbar bleibt.
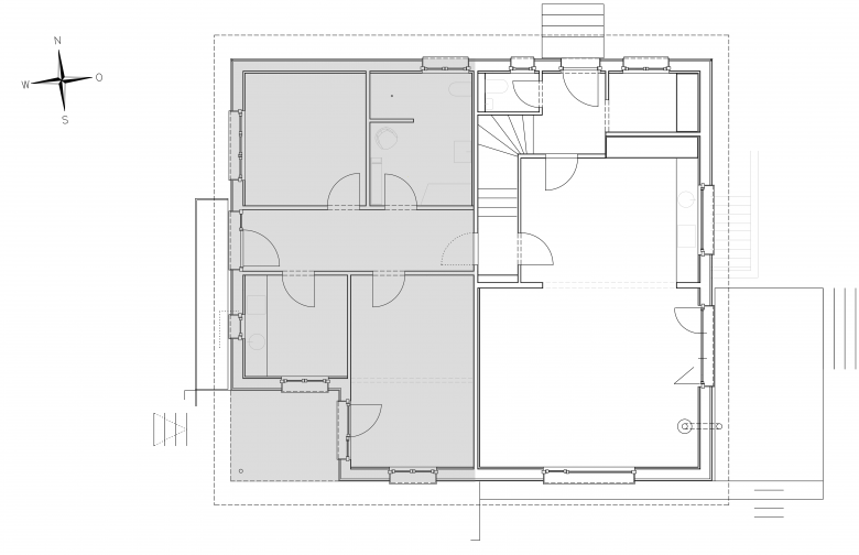
Auch die untere Etage wurde vollständig umgebaut. Die Einliegerwohnung nimmt im Erdgeschoss nun die eine Hälfte des Hauses ein. Kontakt zwischen den beiden Haushälften ist möglich. Da die Eingänge der Wohneinheiten jedoch getrennt voneinander sind und jede sich mit ihrem Außenbereich zu einer anderen Seite ausrichtet, wird Nähe nicht erzwungen.
Zur Dämmung wurde außen eine zweite Hülle um die bestehenden dünnen Wände gebaut. Ohne Klebstoffe wurde die Außenwand dafür mit Holzfaserplatten zwischen und auf einer Holzunterkonstruktion angebracht. Vor der Witterung schützt eine Stülpschalung aus Nadelholz. So entstand anstelle eines Wärmedämmverbundsystem mit Kunststofffenstern eine unbehandelte und hinterlüftete Holzfassade mit Holzaluminiumfenstern.
Das Haus steht in zweiter Reihe in einem großen Garten und fügt sich mit der vorvergrauten Holzfassade und den grünen Fenstern, in denen sich die Natur spiegelt, gut darin ein: Es ist einfach, solide und für die neue Nutzung maßgeschneidert, und wird mit seinen hochwertigen neuen Materialien würdevoll altern.
- Any
- 2022
- Estat del projecte
- Construït
- Statik
- f2k Ingenieure




