Twin Houses
The client wished to develop two homes on an acre each of land. The homes needed to be country homes for Bombay families to get away from the urban rigmarole.
The project needed to balance the money put up against profitability and a sense of capturing the essence of place.
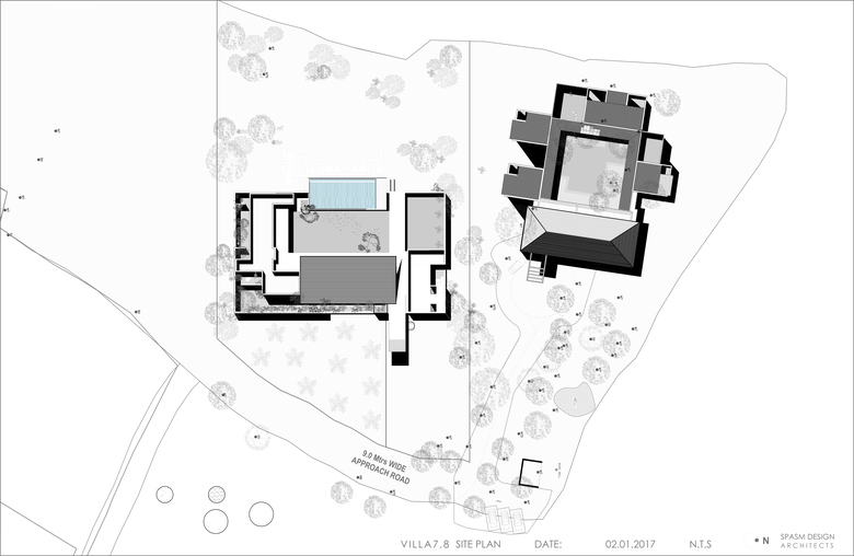
The two sites though sharing a common boundary, had very different characters, one was a flat land looking at a green hill to the west, the other a land dotted by 9 mango trees with low hanging fruit and foliage. The region receives high precipitation in the monsoon months from June to end September. The rest of the year, this farmland area is hot and humid. The local homes are usually courtyard homes since convectional cross ventilation works best in the tropics. Both our approaches are courtyard homes, one a full ground hugging single level structure. The similar but with a pavilionesque living room and pool at upper level.
The villa 7.
Enclosed with a ten foot high red laterite wall finely crafted like a temple plinth, frequently seen in the Raigad belt, this wall has one big opening towards the view of the hill and lawns adjoining, the opening 40 feet wide is straddled by a blue pool forming a foreground to the verdant view. The entire courtyard is edged with a 10 foot wide verandah, allowing for protected movement between rooms. The pool in a way becomes the threshold between the contained courtyard and the rest of the land.
The villa 8.
The veranda here is 5 feet wide, the courtyard smaller, the rooms like pearls strung on a thread, the weaving of the mango trees into the overall layout heightens the sense of the grove like land, hiding and revealing , breezes come in through brick jaalis, the floor of the verandah is also brick, terracotta providing a visual and tactile coolth.
We, hope the future inhabitants enjoy the sky, the breezes blowing over the water, the movement of the sun, the shadows of trees and smell of fresh rains on the earth.
- Any
- 2017
- Estat del projecte
- Construït

















