Behindertenheim Haus Morgenstern, Widen
Erweiterungsbau mit vier Wohngruppen
Bauherrschaft: Stiftung Haus Morgenstern
Wettbewerb nach Präqualifikation 2013, 1. Preis
Anlagekosten BKP 1 – 5: Fr. 8‘936‘000.-
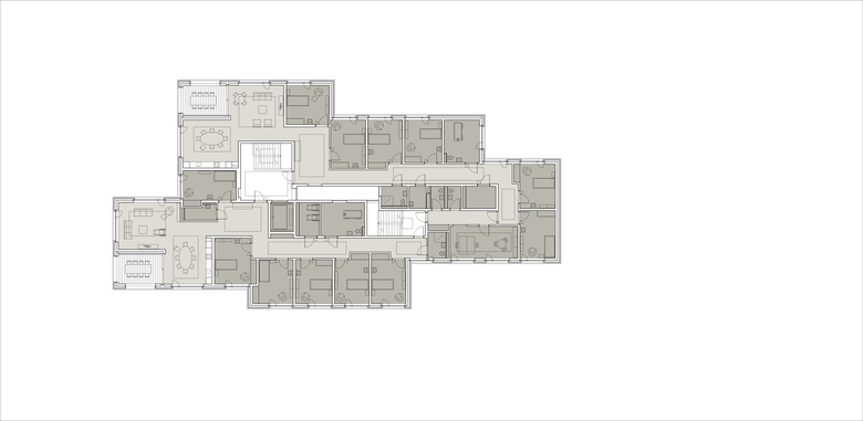
Das Behindertenheim Haus Morgenstern auf dem Hasenberg oberhalb Widen ist über die Jahrzehnte in mehreren Bauetappen gewachsen. Die weilerartige Anlage sollte um einen Erweiterungsbau mit vier Wohngruppen à je sechs Einzelzimmer sowie mehrere grosse Beschäftigungsräume ergänzt werden.
Es galt, ein Gebäudevolumen zu entwickeln, das sich trotz beträchtlicher Grösse gut in die bestehende Bebauung eingliedert. Dies wird erreicht durch mehrfache Rückstaffelungen im Grundriss, die den Gebäudekörper in überschaubare, den umgebenden Bauten entsprechende Abschnitte gliedern.
Die gleiche Strategie ermöglicht es auch, lange und eintönige Korridore in den Wohngruppen zu vermeiden. Stattdessen sind die inneren Zirkulationszonen als Abfolgen von unterschiedlich breiten Raumabschnitten organisiert, welche an ihren Enden immer mit einem Aussichtsfenster ans Licht führen.
Je zwei Wohngruppen gliedern sich um den schmalen Lichthof im Zentrum des Grundrisses. Dieser versorgt die Eingangshalle und beide Treppenhäuser mit Tageslicht und ermöglicht Sichtbeziehungen zwischen den Geschossen. Alle vier Wohngruppen sind nach Süden zur grandiosen Aussicht hin orientiert. Ihren Abschluss finden Sie in zimmergrossen Verandas.
Das in Massivbauweise erstellte Gebäude ist von aussen gedämmt und mit grossformatigen Faserzementplatten verkleidet. Dieselben, mit einem Lochmuster versehenen Platten kommen vor den Lüftungsflügeln als Absturzsicherung zum Einsatz. Hellgelb hinterlegte Plattenfugen und im gleichen Farton ausgebildete Fensterleibungen strukturieren den mächtigen Baukörper. Ein umlaufender Sims über dem Erdgeschoss bindet zusammen mit dem Dachrand die beiden Obergeschosse zu einer Einheit zusammen, welche sich vom Erdgeschoss absetzt. Die Nutzungsverteilung ‚öffentliches‘ Erdgeschoss und ‚private‘ Obergeschosse wird so auch nach aussen abgebildet.
- Any
- 2018
- Estat del projecte
- Construït












