Wettbewerb Pilgerbrunnen, Zürich
Gesamtleistungswettbewerb mit vorgeschalteter Präqualifikation,
in Zusammenarbeit mit Gersbach Landschaftsarchitektur
Aus dem Erläuterungsbericht:
Das Kinderheim Pilgerbrunnen ist Ende der40-er Jahre erstellt worden. In den 90-er Jahren ist der Brahmshof hinzugekommen, eine damals wegweisende Siedlung für zeitgemässes und zukunftsgerichtetes Wohnen.
Die Wettbewerbsaufgabe umfasste einen Ersatzneubau für das Kinderheim, ergänzt um ein zusätzliches Wohnangebot zum Brahmshof. Die Anzahl der neuen Wohnung war nicht fest bestimmt, es ging der Veranstalterin auch darum, diesbezüglich die ‚städtebauliche Verträglichkeit‘ auszuloten.
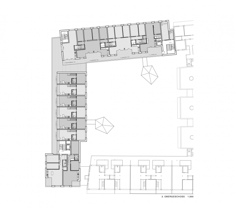
Das Raumprogramm des Kinderheims ist in einem
L-förmigen Volumen untergebracht, das den Innenhof wie zwei schützende Arme umschliesst.
Die Wohnungen sind über zwei periphere, vom Heimbetrieb abgekoppelte Treppenhäuser erschlossen. Diese sind so angeordnet, dass sie im Brandfall auch als Fluchtweg für das Kinderheim dienen können.
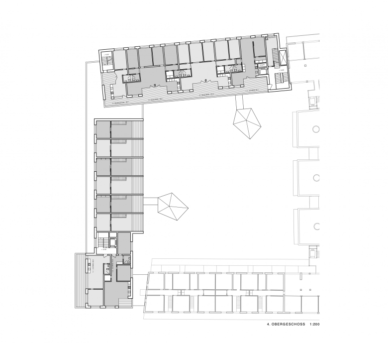
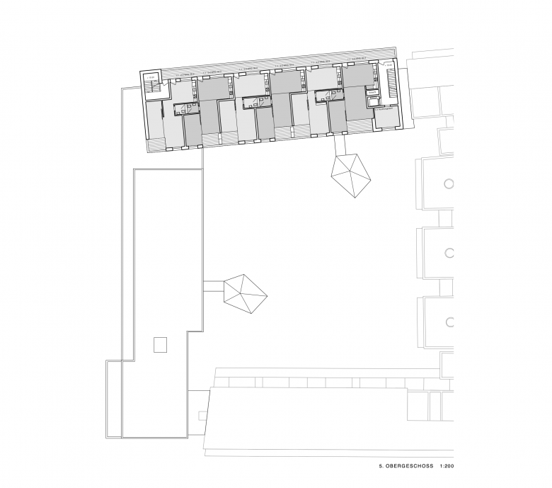
Über dem Kinderheim, ab dem 3. Obergeschoss, löst sich der L-förmige Gebäudekörper auf in zwei unabhängige Volumen unterschiedlicher Höhe. Hier treffen der äussere Laubengang des Westflügels und die zum Innenhof orientierte Verandaschicht der Grosswohnungen aufeinander. Eine Terrasse mit angegliedertem Gemeinschaftsraum wird zum gemeinschaftlichen Zentrum der Wohnsiedlung.
Das Projekt bietet ein breites Angebot an Wohnungen, je nach Lage im Gebäude. Im Westflügel entlang dem Schlotterbeckareal sind, von der Fassade zurückgesetzt, sechs 3-Z-Maisonette Wohnungen angeordnet. Ihre Attraktion sind neben der Ost-West- Orientierung eine Loggia zum Innenhof und eine kleine, halbprivate Nische am Laubengang. Vom gleichen Treppenhaus direkt erschlossen sind sieben weitere 3-Z-Wohnungen, mit Loggia Richtung Süden zum Heiligfeldpark.
Die 2-Z-Wohnungen sind bis auf eine Ausnahme alle im Nordflügel angeordnet. Über einen Laubengang auf der Aussenseite erschlossen, weisen sie private Loggien zum Innenhof auf. Ihr Grundriss ist geprägt von einem Versatz entlang der Bäder im Zentrum. So werden Einblicke vom Laubengang in die privaten Bereiche vermieden und die Wohnung erhält für ihre Grundfläche überraschend grosszügige Dimensionen.
Der Neubau Pilgerbrunnen bringt in seiner robusten Ausformulierung den Blockrand Brahmshof zu einem selbstbewussten Abschluss. Die Gestaltung der Fassaden kombiniert Strategien und Materialien der das Heiligfeld prägenden Bauten, um den Neubau harmonisch mit dem Bestand zu verweben.
- Any
- 2019
- Estat del projecte
- Construït















