Wohnhaus Albisriederstrasse, Zürich
Bauherrschaft: Stiftung PWG Zürich
Direktauftrag, Ausführung 2006
Anlagekosten BKP 1-9: Fr. 1'520'000
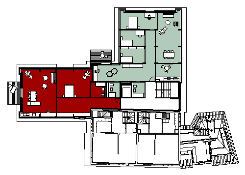
Einbau von vier grossen Wohnungen sowie Räumlichkeiten für eine Primarschule in ein Gewerbegebäude in der Kernzone von Zürich Albisrieden.
Dem Stiftungszweck der Erstellung von preisgünstigem Wohnen und Gewerbe entsprechend wurden die baulichen Eingriffe aus Kostengründen auf ein Minimum beschränkt.
Umso mehr sind die Wohnungen von räumlicher Grosszügigkeit und der Stimmung der ursprünglichen Gewerberäume geprägt.
Die vorgestellten Balkone aus verzinktem Stahl reagieren auf das industrielle Sichtmauerwerk aus Kalksandsteinen.
- Any
- 2006
- Estat del projecte
- Construït






