Wohnhäuser Josefstrasse 10 & 12, Zürich
Bauherrschaft: Stiftung für preisgünstiges Wohnen und Gewerbe PWG Zürich
Wettbewerb 1999, Ausführung 2000
Anlagekosten BKP 1-9: Fr. 3'600'000
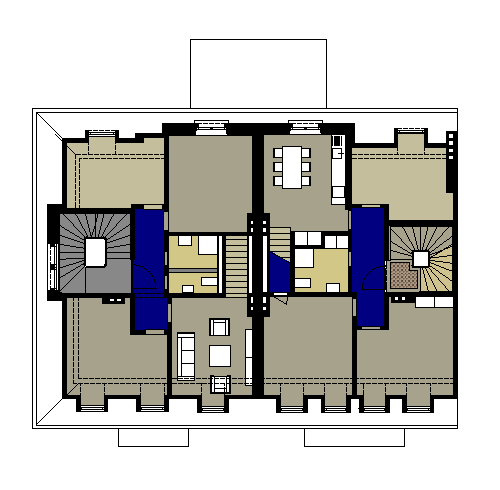
Umbau zu Wohnungen für Wohngemeinschaften verschiedener Grösse sowie denkmalpflegerische Sanierung von Fassaden und Treppenhaus.
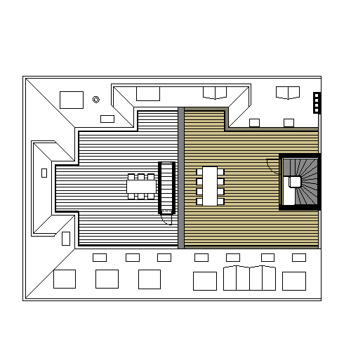
Die baurechtliche Situation ermöglichte im Hof den Anbau eines Balkons von fast drei Metern Tiefe. Statt jede Wohnung mit einem eigenen, kleinen Balkon auszurüsten wurden, dem Anliegen nach gemeinschaftlichem Wohnen entsprechend, jeweils zwei Wohnungen mit einem gemeinsamen Balkon von der Grösse eines Zimmers zusammengekoppelt.
Die ins Zentrum des Grundrisses verlegten Sanitärräume sind pro Wohnung in je unterschiedlichen, starken Farbtönen ausgekleidet und akzentuieren so die 'dunkle' Mittelzone der Wohnung.
- Any
- 1999
- Estat del projecte
- Construït









