Mehrfamilienhaus Winterthur-Seen | Wettbewerb 1. Rang
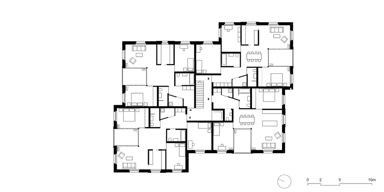
Sich anpassen, ohne unterzugehen. Sich integrieren, aber immer noch man selber bleiben. Das Mehrfamilienhaus schafft das. In einer Siedlung mit Gebäuden aus den 20er- und 30er-Jahren des letzten Jahrhunderts findet sich architektonisch Wertvolles in Serie und Villa. Das führt der Neubau zusammen und weiter. Mit einem Quadrat pro Element, mit offenen und leeren Feldern, mit Eck- und Mittelfeldern. Ineinander gesteckt und in der dritten Dimension geöffnet, entstehen klare Bezüge und Wege.
- Any
- 2021
- Estat del projecte
- En construcció

