Umbau Lux
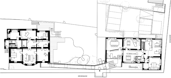
Der neu geplante Verbindungsgang vereint zwei bis dahin getrennt genutzte Gebäude und bietet einen neuen, gemeinsamen Eingang. Verbunden wurden damit auch die zu unterschiedlichen Zeiten erbauten Gebäude zu einem neuen Ganzen, wobei jedoch die Einzelteile in ihrem Charakter klar erkennbar sind. Auch die energetische Verbesserung der Gebäude und Adaptierung der Innenräume nehmen Rücksicht auf die Eigenschaften und Besonderheiten des jeweiligen Gebäudes (mineralische Innendämmung, Passivhaus/Standard, nicht gedämmter Gang).
Beides soll auch Erfahrungen im Umgang mit umbauten bestehender Strukturen für künftige Kunden bringen. Das erweiterte Firmengebäude setzt ein nach außen wirksames Zeichen für die Werte der Firma - die Verbundenheit mit dem Bauen, der Liebe zum Detail und Material und zu gesamtheitlich überlegten und konzeptionell außergewöhnlichen Lösungen. Gemeinsam mit neuen stadtgestaltenden Elementen drängt sich dieses Projekt nicht in den Vordergrund sondern fügt sich in das kleinstädtische Gebiet ein und ergänzt es mit öffentlichen Bereichen.
- Any
- 2011
- Estat del projecte
- Construït






