Universitätsbibliothek Marburg
Neubau Universitätsbibliothek Campus Firmanei Marburg
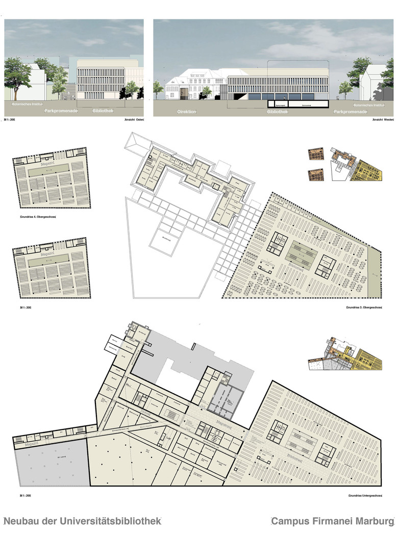
städtebauliche Situation
Der neue Campus der Philipps Universität Marburg, topographisch zwischen den Höhenlagen der historischen Altstadt und der Lahn gelegen, wird durch ein heterogenes Umfeld geprägt.
In direkter Nachbarschaft im Westen durch die kleinteilige Parzellenstruktur der historischen Altstadt entlang des Pilgrimsteiges, im Osten durch das Hörsaalzentrum und eine Reihe von Wohnbauten aus verschiedenen Epochen des 20. Jahrhunderts, im Norden durch die historisch wertvollen Institutsgebäude der Universität aus dem 19. Jahrhundert entlang der Deutschhausstrasse.
Übergreifend prägend für den Ort sind im Norden die Elisabethkirche mit dem neu gestalteten Firmaneiplatz und der Alte Botanische Garten mit seinen historischen Solitären, im Osten begrenzt durch den Mühlgraben. Im Westen grenzt die teilweise durch Gärten geprägte Hangkante zur Altstadt und zum Schloss an.
städtebauliches Konzept
Ausgehend von den topographischen, strukturellen und historischen Gegebenheiten des Ortes wird ein übergeordnetes Konzept für den Campus geschaffen.
Durch die Positionierung der neuen Universitätsgebäude im Gefüge der bestehenden stadträumlichen Ausrichtungen der Elisabethkirche, des Hygieneinstitutes, der historischen Parkbauten und der ehemaligen Hautklinik werden mit dem Kontext vernetzte Stadträume geschaffen.
Ein verbindendes Element zwischen Park und Campus, Altstadt und Lahn bildet die Promenade zum Garten.
Vom Firmaneiplatz ausgehend entsteht eine Sequenz von städtischen Räumen, die bis zum Botanischen Garten führt. Diese städtebauliche Achse wird zugleich zur Haupterschließung für Magazin und Bibliothek.
Der Botanische Garten wird als Zentrum des neuen Campus in der Stadtstruktur verankert, es entsteht der „Campus am Botanischen Garten“.
Die neue Bibliothek der Geistes- und Sozialwissenschaften am Alten Botanischen Garten bildet das Zentrum des interdisziplinären akademischen Austausches und der städtischen Öffentlichkeit, zum Park hin orientiert, bildet sie den wichtigsten Baustein des neu zu schaffenden Campus.
Das denkmalgeschützte Gebäude der Hautklinik, Bibliothek und Magazin bilden ein innen- und aussenräumlich differenziertes Ensemble, das masstäblich in seinem Kontext verankert ist.
Durch die Setzung der Volumen im historischen Kontext werden vielfältige Innen- und Aussenräume geschaffen.
Die Neubauten der Bibliothek bilden zusammen mit der ehemaligen Hautklinik ein spannungsreiches Ensemble.
Der Stadtbaustein des Magazines mit seinem Vorplatz und der grossen Freitreppe bildet die Verbindung von der Altstadt über den Steinweg und den Pilgrimstein zum Campus am Alten Botanischen Garten.
Architektur
Im Kontext verankert, stehen die Neubauten der Universität des Campus Firmanei als öffentliche Gebäude in der Stadtstruktur. Altbau und Bibliothek bilden zweigeschossige Hallen aus, hier bieten sich im öffentlichen Bereich alle Möglichkeiten der Kommunikation.
Der geschlossene Bereich der eigentlichen Bibliothek orientiert sich zum Park hin, die differenzierten Innenräume bieten alle Optionen des konzentrierten Studierens.
Die Fassaden aus vertikalen Stäben und horizontalen Geschossdecken, mit Sandstein aus den Lahnbergen verkleidet, reflektieren ortstypische Motive.
Konstruktion
Als Tragsystem für die beiden Bibliotheksgebäude und das Magazin werden Stahlbetonskelettkonstruktionen gewählt. Sie bieten ein Höchstmass an Flexibilität, dass den sich rasch verändernden Ansprüchen an akademischen Einrichtungen Rechnung trägt.
Die tragenden Kerne, Stützen und Fassaden aus Stahlbeton stellen im Zusammenwirken mit den Stahlbetondecken die Gebäudeaussteifung sicher. Die Gebäude ruhen auf einem gemeinsamen Kellergeschoss, welches ebenfalls als Stahlbetonkonstruktion ausgeführt werden soll. Eine Stahlbetonbodenplatte mit örtlichen Verstärkungen unter den lastabtragenden Bauteilen dient als Gründung und leitet die Gebäudelasten sicher in den Baugrund ab
Die Abdichtung der Außenbauteile im Untergeschoss ist als „Weisse Wanne“ in WU-Beton möglich.
Die Flexibilität in der architektonischen Innengestaltung und bezüglich der Trassenführung der Haustechnik wird durch die Ausführung der Geschossdecken als punktgestützte Stahlbetonflachdecken unterstrichen.
Ökonomie und Ökologie
Die Neubauten der Universität entsprechen den höchsten Ansprüchen an moderne Hochschulbauten.
Alle Räume sind natürlich belichtet und können fassadenseitig natürlich belüftet werden. Durch die kompakte Bauweise mit hochwärmeschutzverglasten Fenstern sowie der der Himmelsrichtung und Nutzung angepasste Fensterflächenanteil wird eine Reduktion der Transmissionswärmeverluste gegenüber den Anforderungen der ENEV 2007 um mindestens 15% ermöglicht.
Das zentral gesteuerte außen liegende Sonnenschutzsystem schützt die Räume nachhaltig vor Überhitzung. Der vorgesehene Sonnenschutz verfügt über Lichtlenkelemente, so dass auch bei gezogenem Sonnenschutz das Tageslicht durch Reflexion an der Decke diffus tief in den Raum hinein geworfen und eine Nutzung von Kunstlicht minimiert wird. Ergänzend dazu wird eine künstliche Beleuchtung vorgesehen, die sich in der Lichtstärke dem Tageslicht anpasst.
Für alle Räume in denen enge Klimaanforderungen in Bezug auf maximale Temperaturen und Feuchteschwankungen bestehen ist eine mechanische Belüftung vorgesehen. Da neben ist auch für alle im Normalfall natürliche belüfteten Bereiche eine Lüftungsanlage für den Winterbetrieb mit zentraler hocheffizienter Wärmerückgewinnung geplant. 75% der sonst benötigten Lüftungsenergie kann so zurück gewonnen werden. In Gesamtheit (Transmission + Lüftung) werden, also rd. 40% Energie eingespart. Diese minimiert den Verbrauch an fossilen Energieträgern wesentlich.
Zur Beheizung und Grundkühlung der Raumbereiche wird eine Bauteilaktivierung mit Randstreifenheizung geplant. Dieses System kann sowohl in den Rücklauf des Heißwassersystems bis 2017 oder direkt in das spätere Niedrigtemperaturnetz eingebunden werden. Im Sommer ist über die Bauteilaktivierung eine Einbindung von Nachtkälte möglich.
Zur Reduktion der Versiegelung und optimaleren Einbindung in das Stadtbild könne Teile der Dachflächen begrünt werden.
Freiräume
Der Alte Botanische Garten mit den neu strukturierten umliegenden Freiräumen bildet das Zentrum des neu geschaffenen Campus.
Als weitläufiger Park und Ruheraum bildet er das Pendant zu den Aktivitäten in den angrenzenden Universitätsgebäuden, aufgewertete und neu geschaffene Grünverbindungen führen zu einer optimaleren Einbindung des Botanischen Gartens in das gesamtstädtische Freiraumsystem.
Der Bereich der neuen Bibliothek zwischen Deutschhausstrasse, Pilgrimstein und Parkpromende bietet auch für sich gesehen alle Merkmale eines städtischen Universitätscampus im Grünen.
Vielfältig vernetzt, werden Freiräume unterschiedlichster Qualitäten gebildet, die über den universitären Bereich für das Klinikviertel von Bedeutung sind, Strasse, Platz, Hof und Park bieten differenzierte Aufenthaltsqualitäten.
Allseitig von Bäumen im Grünen umgeben, fördert das Umfeld die Konzentration der Lernenden und Lehrenden.
Thema
Auf Grundlage des übergeordneten städtebaulichen Konzeptes bilden die Neubauten der Universitätsbibliothek Marburg und der umliegenden Institutsgebäude mit den neu geschaffenen Stadträumen, Wegen und Freiräumen das Zentrum des Campus Firmanei am Botanischen Garten.
Für sich stehend und doch in ihrem Kontext verankert, bilden sie einen angemessenen Rahmen für die alltäglichen und besonderen Aufgaben der Nutzer.
Im Klinikviertel, zwischen Altstadt, Rudolphsplatz, Firmaneiplatz und den entlang der Biegenstrasse im Bereich der Lahn gelegenen zentralen universitären- und öffentlichen Einrichtungen gelegen, entsteht ein Stadtquartier hoher Qualität.
- Estat del projecte
- Disseny
- Landschaftsplanung
- TOPOS Landschaftsplanung





