How smart is the building? When smart technology meets architecture

The concept for the beeline GmbH headquarters follows the idea of a networked city. All functions are united in one building. The design shows a transparent building seemingly floating above six concrete cores. © O&O Baukunst GmbH Cologne

Quite the opposite, argues the JUNG Company. Smart technology gives users freedom by anticipating their wishes and emphasizing comfort and convenience.

Founded in 1912, the family-owned company has been a leading manufacturer of electrotechnical solutions in Germany for three generations. With the motto “Progress as tradition”, the company has always focused on the use of innovative technology and intuitive operation: people are integrated into building climate planning through subtle incentives. With the “smart” products, more than 90% of which are manufactured in Germany, the company aims to minimize usage errors, thus making a significant contribution to the energy turnaround in the building sector.

This is to be achieved, among other things, by the KNX standard co-developed by JUNG and valid worldwide, which enables uniform networking of all smart components in a building. JUNG presents the potential of this technology in the newly designed showroom of its Vilnius branch. KNX allows all functions of a room, including lighting, ventilation, shading, temperature, and multimedia, to be centrally networked and controlled. In interaction, this results in “an optimal use of resources”.

JUNG Showroom in Vilnius, Smart Living © JUNG
JUNG Showroom in Vilnius, Smart Office © JUNG

Is this the emergence of a creative force that escapes the influence of architects? Does this development push them into the background?

The company has taken a clear position on this issue: It rejects the “either-or” philosophy and emphasizes collaboration and integration. In fact, according to JUNG, the technical solutions should be considered from the outset, because sustainable building requires holistic architectural plan. One that considers the aspects of technology alongside design and function already in the planning phase and does not incorporate it into the design as an afterthought.

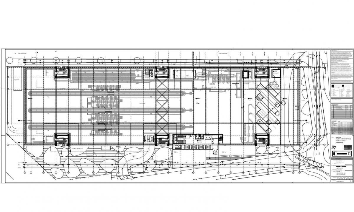
This fusion of architecture and modern building technology was a central idea for O&O Baukunst when designing the International Service Center for the jewelry company beeline GmbH. The German-Austrian architectural firm had won out over six competitors in a competition in Cologne and was awarded the contract by Beeline real estate. The project was to be built in Cologne-Deutz on the right bank of the Rhine as the company’s European headquarters, but was not implemented after the approval process was completed. Thus, the project remains an intelligent prototype that already incorporates smart industrial architecture in its conceptual design: the approximately 170-meter-long, 50-meter-wide complex is based entirely on technical networking – from the smallest element of the jewel to fully automated warehouse logistics, the conveyor belts of the order-picking system, and creative production on the upper floors. An example of how architecture and building technology can form a symbiosis in the digital age.

The fully automated high-bay warehouse is located in a separate cube. Large-scale artworks adorn its façade. © O&O Baukunst GmbH Cologne
The column-free production hall is completely glazed. The computer-controlled order-picking installations are the foundation of the commercial activities. © O&O Baukunst GmbH Cologne

The trend towards ever greater digitalization and networking is also making its way into architecture, and the demands on urban planners and architects are constantly changing. An integrative approach is necessary for architecture to keep pace with the rapid development of technology. If we continue to adhere to traditional architectural concepts, we will not be able to master the challenges of the climate crisis in the building sector. Smart buildings with networked control elements have great potential to make energy use more efficient; only close cooperation between the various trades can create a basis for “smart” building of the future.

For more than 100 years, JUNG as a premium manufacturer in the field of building technology has pursued the claim “Progress as tradition”. The course was set by electoral mechanic Albrecht Jung in 1912 in Schalksmühle, North Rhine-Westphalia, when he invented the then novel pull switch that revolutionized the market. To this day, switches have remained the “heart” of the company. Ever since, the company, which today has over 1,400 employees in more than 20 subsidiaries and agencies worldwide, has been continuously researching new forms of building technology.

Interactive map
Using selected building projects by O&O Baukunst, the topic is presented taking the city of Cologne as an example. For information on the projects, click here for the interactive map.

«Town Planning in Democratic Structures» is a project of O&O Baukunst Köln, C. FATH and World-Architects.
En col·laboració amb