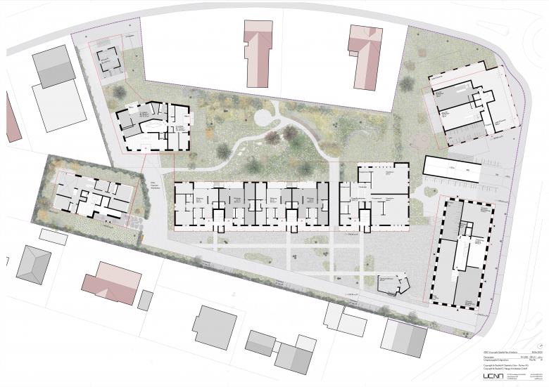
Wohnüberbauung Neu Arlesheim

Wohnüberbauung Neu Arlesheim, Basel Landschaft | In Bearbeitung

Planung und Realisierung

Planung von drei Wohnhäuser mit insgesamt 80 Wohnungen im Miet- und Eigentumsverhältnis. Für eine nachhaltige Siedlungsentwicklung unterstützt die Bebauung die Belebung des öffentlichen Raums und eine schafft durch variantenreiche Wohntypologien ein ausgewogene Durchmischung des Quartiers.

Planungsstart Juli 2022

Any
2022
Estat del projecte
En construcció

Altres projectes per UC'NA 

Transformationsprozess Porzi-Areal
Langenthal, Switzerland
Massnahmenkonzeption Migros Herdern
Zürich, Switzerland
Studienauftrag Migros Hochhaus Herdern
Zürich, Switzerland
Sanierung und Aufstockung Steinentischstrasse, Zürich
Zürich, Switzerland
Sanierung ehm. Pfarrhaus Bürglistrasse, Zürich
Zürich, Switzerland