Collector's Loft
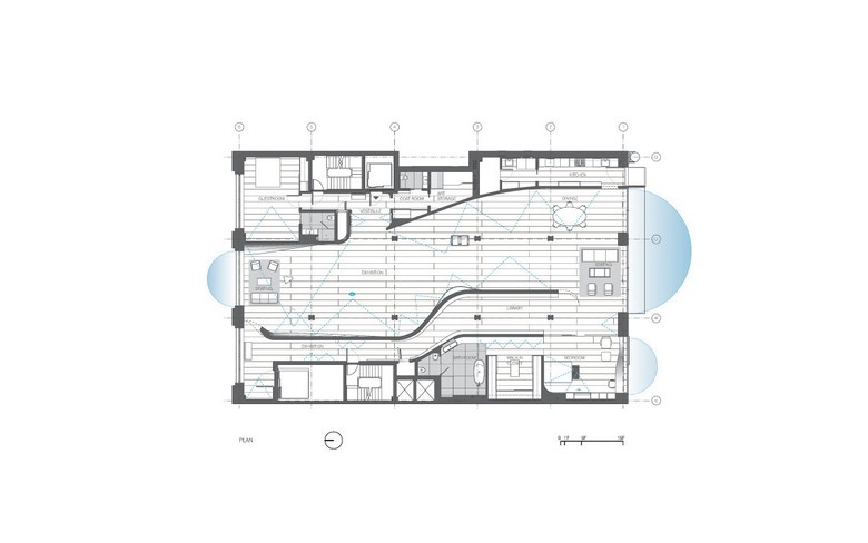
The design for an existing loft located in Greenwich Village in Manhattan explores the interaction between a gallery and living space. The main walls in the loft flow through the space, and together with articulated ceilings create hybrid conditions in which exhibition areas merge into living areas. While the walls form a calm and controlled backdrop for the works of art, the ceiling is more articulated in its expression of this transition. By interchanging luminous and opaque, the ceiling creates a field of ambient and local lighting conditions, forming an organizational element in the exhibition and the living areas. In addition the former windows in the South wall have been replaced by floor to ceiling glass panes that frame and extend compelling views, over a full glass balcony, towards downtown Manhattan.
- Any
- 2010
- Estat del projecte
- Construït







