MAB Schlotterbeck Zürich
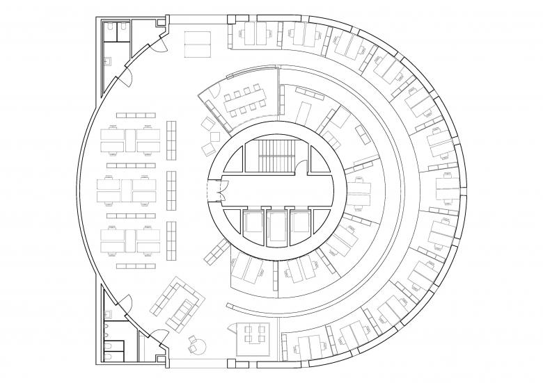
Das Schlotterbeck-Areal an der Badenerstrasse in Zürich wurde im Jahr 2018 fertig umgebaut und lässt Alt auf Neu treffen. So vereint sich jetzt im ausgebauten Grossraumbüro auch die Struktur des neuen Turms mit der Rampenanlage der ehemaligen Autogarage Schlotterbeck.Der pilzförmige Kern des darüberliegenden Wohnturmes dominiert den runden Raum. Die umlaufenden Rampen lockern dessen Massivität auf und ergeben ein spannendes Spiel.Bei der Gestaltung des unkonventionellen Büros setzten wir gezielt auf dunklen Gummigranulatboden, der mit dem glatten Sichtbeton eine ruhige Stimmung schafft. An beiden Rampenansätzen befinden sich Sitzungszimmer, die gleichzeitig zonieren und Ausblick in die Bürolandschaft bieten.
- Any
- 2024
- Estat del projecte
- Construït
- Client
- Stahler. Group AG
- Equip
- Mit Gartenmann Engineering AG (Akustik).









