CXCC SUMMIT 58
Wutopia Lab was invited to design an urban observatory, a landmark for Huangpu District, at the 250-meter crown of the Pacific Xintiandi T1 Tower, scheduled to open in October 2025.
What was the design task?
Observatories in skyscrapers have become a must-visit destination for modern urban tourism. However, merely ascending to great heights faces cannot provide the experience that stand out from similar skyscrapers. Therefore, the client required to explore the thematicity, topicality, and culture attributes of the skyscraper landmark. They hope the observatory would evolve from being an appendage of a super high-rise into an urban attraction and an independent cultural tourism.
From the top of the Xintiandi T1 Tower, one can enjoy a 360-degree view of buildings from all eras in downtown Shanghai—from the Site of the First National Congress of the CPC to the Lujiazui Financial Center, from the Bund to the three bridges spanning the Huangpu River, from People's Square to Hongqiao—all captured in a single panoramic glance. As a core super high-rise in Huangpu District, which located in Shanghai's central area, Xintiandi T1 naturally shoulders the responsibility of being an urban manifesto of Huangpu. It must not only embrace Shanghai's most significant history and present, but also articulate a vision for the future.
Setting the nation’s 2060 Dual Carbon Goals as the future theme, the client required to weave the past, present, and future of Huangpu and Shanghai into the circulation of the observatory, transforming it into an attractive and symbolic urban cultural-tourism attraction.
Let's Build an Iceberg 250 Meters Above Shanghai
Place is Perception
The text in the brief needed to be translated into spatial form. Scientists who study continental ice sheet glaciology noticed global climate warming by monitoring the Greenland ice sheet over the years. Thus, the glacier became a precise indicator of global warming.
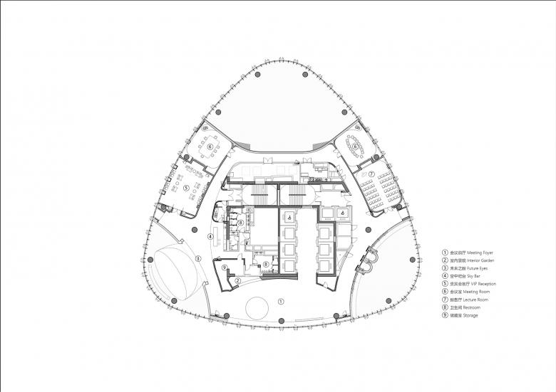
I decided to design the entire site—the 55th floor, 56th floor, 57th floor the rooftop and the 58th floor—as an iceberg in an abstract form. The 57th floor, the main outdoor observation deck, represents the sea surface with floating ice. The mechanical rooms above the 57th floor up to the helicopter rescue platform on the 58th floor stands for the iceberg visible above the sea. The indoor spaces of the 55th floor and 56th floor—including the entrance lobby, observation decks, exhibition halls, café, convention hall, floating garden, meeting rooms, and lounge—constitute the submerged part of the iceberg. The functional spaces are designed as caves within the iceberg, consistently using a refined vocabulary of arched elements to create a familiar strangeness that is perceptible. With slight explanation, visitors can reach a consensus of sudden understanding. This familiar yet the form of which has not been commonly defined type of place—the observatory—thus becomes perceptible and comprehensible.
And so, the iceberg was placed into the crown of the Xintiandi T1 Tower.
Form is Function
Once the tower crown's interior becomes an iceberg and caves, the space severs its relationship with the exterior façade. The greater the contrast between the interior and the glass curtain wall that tourists are so familiar that they often overlook, the stronger the dramatic tension created, and the greater the emotional value provided to visitors. Emotional value is also a function. Using continuous white arches, the architect shaped the 56th floor, mainly constitute of small-scale spaces—small exhibition areas, meeting rooms, and lounge —as a space with continuous iceberg caves. This achieved the first step in creating iceberg in the tower crown . In this case, we can say that form is function.
Ornament is Opinion
The 55th floor houses a double-height observation café and a convention hall. Repeating the white arched vaults like the 56th floor would be monotonous. Furthermore, the more complex array of equipment—speakers, broadcast systems, cameras, fire sprinklers, smoke detectors, light fixtures, and air vents—would disrupt the purity of the continuous vaults. Suddenly, a bold idea struck me: why not turn all of it into a pattern, using computational technology to integrate these various openings and devices? Inspired by the link between ice and snow, we developed a six-petal snowflake motif, translated into 1,100 grass leaf shaped perforated anodized aluminum panels. Together, they form a continuous, expansive ceiling pattern that incorporates all technical elements.
But this felt 'un-architectural', and I was apprehensive. “Decoration is evil,” as we’ re taught, is like a steel seal in an architect's mind. I observed my wife and my female colleagues, and asked why they wear jewelry, however simple. Here’s their answer: it’s an expression of how they feel that day. So, ornament is not a crime. Ornament is an attitude. It can even be a point of view.
Looking back at Shanghai’s Art Deco history, I saw that same attitude—a blend of traditional motifs with forward-looking forms. It was a distinctly Shanghainese aesthetic stance.
That’s when I let go of the guilt and discovered a new path for exploration. I realized I don’ t have to be a modernist purist which I never was. I could become the first architect of Shanghai Deco—and these 1,100 snowflakes are its first manifestation. This was the second step building the iceberg on the tower crown.
Duality is Dynamics
On the 55th floor, a 120-sqm outdoor space, 25 meters high. Inspired by the idea of duality, we paired the “iceberg” with a “green heart”—a green garden. Duality also put me off recreating a classical Chinese garden like the one we planned for Shanghai Center. Instead, we deconstructed one, drawing inspiration from Yu Garden, and reassembled it as a suspended garden in a vertical way. Across the 25-meter height, the architects and landscape designers customized rippled stainless steel of different heights to wrap the floating island garden. The journey from the 55th floor to the 57th floor by the sightseeing elevator is traversing a vertical garden. Each layer of the floating garden casts a shadow on the 120 sqm floor of the 55th floor, which simulate water with black terrazzo and metal ripples. The floating garden creates more than 100% green coverage. A stainless steel moon gate and 3D-printed Taihu rocks, paying attribute to the Yu Linglong in Yu Garden, visually pair the historical and the contemporary in this reconstructed Chinese garden.
This may not seem like part of the iceberg—but it is its evergreen soul.
Vision is Vanguard
Between the 55th floor and 56th floor, the architect created two large 'eyes' framed by arched openings to connect the spaces. The 'Golden Eye' on 56th floor looks over the circular large screen of the café observation on the 55th floor towards the thriving city of Shanghai. The other eye looks through the suspended garden towards Xintiandi's Taiping Lake and the Site of the First National CPC. Shanghai is a miracle that grew rapidly within far-sighted vision. This pair of discerning eyes is an extra chapter of building the iceberg.
Material is Mood
On the white terrazzo 'sea surface' of the 57th floor, the rooftop, we collaborated with Mr. Shi Jun, a Shanghai Master of Arts and Crafts to transform elevator equipment rooms into abstract ice forms using translucent glaze—a material that echoes real ice, directly referencing the iceberg theme. Behind these glacial walls, LED lighting by OPPLE offers two modes: one shifts colors, turning the iceberg into a colourful mountain; the other evokes a subtle scene of the Yangtze River. The iceberg uses the material of glaze, emotionally connecting itself to Shanghai. This was the third step building the iceberg.
Architecture is Affect
A staircase from the 57th floor enters the iceberg, leading up to the 58th floor—the summit. Here lies a giant sundial etched with the 24 solar terms, made from photovoltaic panels, serving as a platform for helicopter hover rescue and as a performance stage. It shows how technology can be translated into dramatic spatial experience. This was the final step to complete the iceberg. Thus, we finally built the iceberg atop the Xintiandi T1 Tower. Standing at the center of the sundial, feeling the breeze and the warmth of the sun, you feel connected to the world. Everything falls into place.
Epilogue: What's Past is Prologue
Existence is Event
Every dream needs an executable plan. The Xintiandi Observatory is an iceberg, but it is essentially a micro-attraction within the city—a hybrid of public viewing spaces and group facilities, offering culture, commerce, exhibition, art, conference, and other various lifestyle scenarios. It is a destination for lively urban life and cultural education. It encourages us to see beyond the everyday.
During my final walk-through, I was standing at the center of the large stage and beneath the snowflake-patterned ceiling, facing the city of Shanghai, when the LED columns on the interior façade suddenly lighted up. The splendid light reflected on the window intertwined with the night view of Shanghai, creating a scene of magical realism.
I watched LED columns light up, blending with the Shanghai skyline into a scene of magical realism. All the hard work and complexity suddenly felt effortless.
During my final site inspection, standing at the center of the large stage, beneath the covering of snowflake patterns, facing Shanghai, suddenly the LED columns on the interior façade erupted into a magnificent display, intertwining with the Shanghai cityscape to form an even more magically realistic artwork. All the hard working and thinking turned out to be incredibly easy at the end.
Space is Spirit
My personal favorite is the lounge on the 56th floor. The continuous arcades frame a new urban landscape at the façade. Shanghai glimmers like crystal beyond the arches. Standing on the black, reflective floor, my mind goes quiet and empty. This space, because of this emptiness, acquires an instant sacredness.
Shanghai is Sophistication
This is a gentle iceberg. It conveys a nuanced elegance of Shanghai people in a sophisticated way. First, pragmatism: transforming the office space on the tower crown into rooftop economy with public access. Second, rationalism: balancing spectacle with budget. Third, optimism: creating vast views within limited space on the top floor. Finally, romanticism: after all of these serious considerations and calculations, the iceberg was used as a symbol to express the ultimate romanticism towards the world, the hometown and the people of Shanghainese people in an incredible dramatic way.
"All these processes are reversible. If everybody can make the effort of doing just one thing, reducing their carbon footprint. Consume less. Think about what we need, what we really want.”
--- From "Frozen Planet II"
Project Information
Project Name: CXCC SUMMIT 58
Project Address: 55F-57F, T1 Tower, Pacific Xintiandi, 111 Ji'an Road
Client: Shanghai Ruiyongjing Real Estate Development Co., Ltd.
Gross Floor Area: 5,300 ㎡
Main Materials: Aluminum Panels, Glass, Terrazzo, etc.
Design Period: November 2022 – May 2024
Construction Period: July 2024 – April 2025
Design Company: Wutopia Lab
Chief Architect: Yu Ting
Project Manager: Dai Xinyang
Project Architect: Ge Jun, Dai Xinyang
Design Team: Zou Junjin, Sun Yiwen, Chen Zhengqiang, Xu Wanlin, An Yingjie
Scheme Development Team: Dai Yunfeng, Cui Xiaoxiao, Wu Xiaoyan, Qin Liyan, Zhao Ruyi
Parametric Ceiling Design & Optimization: Cheng Weiting, Xu Chencheng, Yu Zihui, Zhou Xing, Xu Zijie
Landscape Design: VIA Landscape
Landscape Team: Sun Yijia, Zhou Mi, Wu Yan, Quan Shuaiqun, Ma Li
Lighting Consultant: Zhang Chenlu, Wei Shiyu
Curatorial Consultant: LUMINATORS
Curatorial Team: Anna, He Peilian, Tan Fangying, Xu Jinkai, Zhu Xiaozhou, Zhang Yang
Logo Deisgn:HDU²³
Logo Design Team:Lu Yaxin, Wu Siguang, Sun Hao, Zhang Xingyu
Interior Construction Documents: Yangchuan Decoration Engineering Design (Shanghai) Co., Ltd.
Design Team: Pan Xiaochuan, Liang Wenwu, Xu Zhibin, Chen Jinyan, Wang Chunyan, Liu Chuanzhou, Shi Zhipeng, Sun Wei
Landscape Construction Documents: Shanghai TIANHUA Architecture Planning & Engineering Co., Ltd.
Design Team: Cao Xin, Xiao Wanquan, Zheng Yusi, Han Jinping
Site Architectural Concept Design: Kohn Pedersen Fox Associates
Site Construction Documents: East China Architectural Design & Research Institute (ECADI)
Soft Furnishing Design: Dawn Design
Design Team: She Wanting
General Contractor: Shanghai Baojie Chuangxin Construction Group Co., Ltd.
Team Members: Li Zhaoyang, Wu Jian, Hong Xin, Yang Zhiqiang, Shi Conghui
Photography: CreatAR Images
- Any
- 2025
- Estat del projecte
- Construït





































