Gartenrestaurant

Kiew, Ukraine
Gartenrestaurant

Grüne Oase in der Großstadt.

Die besondere Lage des Gartenrestaurants – eine Grünfläche, umgeben von historischer Bausubstanz im Zentrum von Kiew – und der alte Baumbestand mit seinem schützenden Blätterdach verleihen dem Ort eine unverwechselbare Atmosphäre. Diese Merkmale aufzugreifen und durch eine sensible Gestaltung noch stärker hervorzuheben stand im Fokus der Planung: Schwebende Ebenen, leichte Konstruktionen sowie klare, elegante Materialien prägen das Ambiente des Gartenrestaurants. Ein markant gestalteter Eingangstunnel aus Holz empfängt den Gast. So bleibt der Innenhof vollständig abgeschirmt von außen und es entsteht der Eindruck, man betrete eine andere Welt. Das Gartenrestaurant ist sowohl formal als auch im Hinblick auf die Materialwahl bewusst reduziert und schlicht gestaltet und bis ins Detail ausgearbeitet. Neben dem örtlichem Bezug, Formfindung und Materialwahl spielt auch das Beleuchtungskonzept für das besondere Ambiente eine entscheidende Rolle.

Bauherr
Orangery Limited

Bauzeit
06/2010 bis 08/2010

Baukosten
ca. 1,5 Mio. Euro

Bruttogrundfläche
ca. 1.400 m², davon 140 m² Bestand

Bruttorauminhalt
420 m³ Bestand

Leistungsphase
1 bis 9

Projektteam
Anke Pfudel-Tillmanns (Projektleitung), Martin Reimer

Fotograf/en
beproactiv
Viktor Boyko

Corporate Design und Informationsgestaltung
Baumann & Baumann Büro für Gestaltung

Gartenrestaurant
Gartenrestaurant
Gartenrestaurant
Gartenrestaurant
Gartenrestaurant
Gartenrestaurant
Gartenrestaurant
Gartenrestaurant
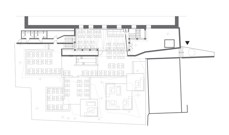
Grundriss
Zeichnung © 4a
Jahr
2010
Projektstatus
Gebaut

Andere Projekte von 4a Architekten 

Therme Lindau
Lindau, Deutschland
Wasserwelt Langenhagen
Langenhagen, Deutschland
Sanierung Lochenbad
Balingen-Weilstetten, Deutschland
Freizeitbad Syrdall Schwemm
Niederanven, Luxembourg
Familien- und Freizeitbad F.3
Fellbach, Deutschland