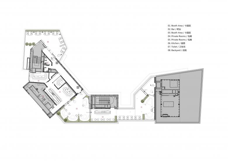
EVER BOOM, SHENZHEN
Project name: EVER BOOM, SHENZHEN
Client: Shenzhen EVER BOOM Catering Co., Ltd.
Location: Shenzhen
Area: 800 sqm
Design time: January 2023
Completion time: July 2023
Design firm: AD ARCHITECTURE (http://www.arch-ad.com/)
Email: office@arch-ad.com
Chief designer: Xie Peihe
Main materials: metal mesh, Japanese paper, acrylic, liquid metal, chiseled stone, black sintered stone, matte metal, frosted glass, outdoor flooring, gray granite (flamed surface), textured paint (black fluorocarbon paint, rust feature paint, Italian handmade paint)
Photography: Ouyang Yun
01/Chapter 1
Commercial Eden|A Dramatic Contrast in Dimension
As the economy and society continue to evolve, an increasing number of upscale restaurants are incorporating artistic elements into their dining spaces to provide a spiritual nourishment that complements the flavors of their cuisine. This trend has transformed restaurants into new art venues. In his book, Manifesto of Futurist Cooking, Italian poet Filippo Tommaso Marinetti suggested that some food on the table were not to be eaten, but to be appreciated as a work of art. He believed that the process of preparing and consuming food should be a delightful artistic experience rather than just a means of satisfying hunger. The founder of EVER BOOM is a practitioner of Japanese cuisine and has experience as a market investor and operator, who is good at vitalizing profitable products by integrating them into the market.
02/Chapter 2
Cultural Breakthrough|Create a Mysterious Field
Located in Houhai Harbour, EVER BOOM's front door emits a warm glow from its Japanese family crest logo, inviting customers to explore what lies beyond. The interplay of light and shadow on the solid door creates a sense of mystery, adding to the anticipation of what's inside. The greenery in the outdoor planters adds vibrancy to the entrance area.
EVER BOOM is situated in Houhai Harbour, a youth-oriented mall characterized by a youth culture that breaks down barriers with high-quality content to stand out to attract young customers. The incubation and operation of the "youth culture" of Houhai Harbour is exemplary in the commercial property field, making it an unique complex in Shenzhen. It's located in Houhai District, a new CBD in the Greater Bay Area that needs top commercial complexes to foster a high-quality lifestyle by the use of favorable urban center resources, to serve young elite customers and the new middle class.
As an economic hub in the Greater Bay Area that agglomerates innovative technology enterprises, Houhai District is planned with a network of commercial corridors to serve creative and forward-looking customer groups. Based on the commercial form of the mall, EVER BOOM integrates the internet celebrity economy, night economy, experience economy, and community economy to shape its business operations. With its unique atmosphere, EVER BOOM has become an iconic catering destination at Houhai Harbour, standing out in the entire shopping mall.
03/Chapter 3
Venue of Banquet|The Bold and Dark Scene
As approaching the project, AD ARCHITECTURE shifted its focus from short-term gains to long-term benefits by considering the owner's future needs during the early stages of planning and design. The design team also took into account the later stages of operation, management, and maintenance. One of the main challenges was finding a balance between environmental transformation and economic activation. AD ARCHITECTURE managed to enhance the overall image and style of the space while keeping in mind the economic logic behind it and how to activate the brand's assets. The team adopted "dramatic" design that aligns with the current times. The reception area is reinterpreted, to incorporate a sense of ceremony into luxury dining and create a captivating experience at the start of the journey into the restaurant.
A drama: defining the dramatic sense beyond the mere presence of its elements, but the ambiance created within the space. The restricted but boundless construction techniques, enclosed, penetrated, and then conflicted and blended, and finally sublimated. The interplay of light and shadow shaped the structure, creating the mysterious "realm", the core of defining the identity of place. The spirit of place, blend seamlessly with the aura of the space, thereby influencing the energy and mood of its patrons, immersive, quiet, or indistinct...
04/Chapter 4
Fine Dining|Expand the Space Dimension of Restaurant
EVER BOOM offers a unique dining experience that combines traditional Japanese flavors with cutting-edge French innovations, while also incorporating Chinese elements and cooking methods. The restaurant's mythological aesthetics and contemporary art provide a dramatic and immersive atmosphere for fine dining. Over the past three years, Houhai Harbour, a commercial complex where EVER BOOM stands, has positioned itself as a "high-quality content producer" that caters to the needs and demands of contemporary young consumers.
The founder of EVER BOOM has adapted to the trend of property rights reorganization and aims to capture the new youth economy market. As the property rights operation model changes the space design logic, the design team proposed an innovative space design strategy that improves the spatial economy through an asset-based design approach and market-oriented operation method of the restaurant. Using economic factors to expand the dimension of the commercial space, AD ARCHITECTURE intended to make the restaurant a dark horse in the catering market. The immersive artistic atmosphere of EVER BOOM is not only reflected in the space. The menu is designed to reflect the overall Japanese artistic aesthetic philosophy, with a focus on the elegance of Japanese aesthetic literati and the lively ordinary life scene in Japan. The refined food art is served in precious utensils and echoes the spirit of Japanese craftsmen with a long history of the same origin.
05/Chapter 5
Satanic Drama|Bloody Beauty Across Time
Like "Heaven" and "Hell", the venue boasts a bloody yet beautiful ambiance, where every subtle detail defines the sense of place. The open hall features a unique layout of the dining area, creating an atmosphere with a sense of distance formed by social emotions. The circulation design lays out the physical form for segmented social places, while the elegant, mixed, and blurred lighting effect creates a luxury brand image with the force of chaos. The Omakase operational counter, located in the center of the black and red space, serves as the first functional visual focus and provides auxiliary functions for all seating areas. Its location closest to each dining area maximizes its functions and emphasizes an open spatial mood in the mysterious field. Unlike many other Japanese restaurants, EVER BOOM is tranquil and beautiful, incorporating a distinctive style of modern Japanese spirit.
The importance of having a powerful product can only be fully realized when the market returns to rationality. Continuous product innovation based on profound knowledge is crucial for the success of any project. In this project, the client and AD ARCHITECTURE adapted to the market demand, resulting in a “strong-willed” satanic drama that was fully staged. The designers also added a playful triangle island in the middle of the space layout to separate the flow of people. Patrons can enjoy delicious food while experiencing the delicate dramatic vibe of the space, which satisfies both their senses and spirit.
06/Chapter 6
Law of the Jungle|Life Philosophy
EVER BOOM embodies the urban genes of Shenzhen, creating a bold and lively dining atmosphere. The VIP rooms are located deep within the restaurant while the operational counter provides an impressive display of the food and ingredients, providing patrons with rich experiences by altering the perspectives. The restaurant’s design incorporates the curves, lines, and materials of the basic structure, with textures that outline the dramatic sense of the "city context" all over the space. From the VIP room, customers can enjoy a view of the nearby high-rise buildings, observing the law of the jungle that is staged in Houhai Harbour.
The space exudes an air of luxury and comfort because of the collision between the stone-texture paint wall and etched metal. The soft lighting further enhances the ambiance, creating a sense of weight in the area. The floor-to-ceiling glass makes the scene and field superpose, and the inversion of a heavy volume results in a dramatic yet balanced feeling. The designers' exploration of thinking and analysis is evident in the expression of the space. The power of the curve creates fluidity, reflecting the designers' thinking on the essence of life. The space connects rationality and sensibility, respecting the world and guiding people to pursue the law of the environment based on the present.
07/Chapter 7
EVER BOOM|Darwin-style Evolution
At the end area of the space, EVER BOOM highlights Darwinian evolution with distinctive and mysterious textures. The use of stone materials on the floor and wall, a large area of rust feature paint, black wooden chairs with mountain patterns around the operational counter, and a chiseled background wall all contribute to this intention. The functional old timber installation echoes the space details, implicitly expressing the elegance of the commercial space. The large area of plain and rough travertine and calm tones, along with the clean and dignified arrangement of inkstones, creates a layered aesthetic that highlights the integrity of the interior surfaces, resulting in a calm and elegant space. AD ARCHITECTURE has successfully expressed the brand concept in response to the market, creating a deep connection between the brand and customers and helping the brand to win the favor of consumer groups.
- Jahr
- 2023
- Projektstatus
- Gebaut




































