REI – Quartier du Parc Reimerwee
REI – Quartier du Parc Reimerwee, Kirchberg (LU) – Sozialer Wohnbau (94 Wohneinheiten)
Die Wohnfamilie
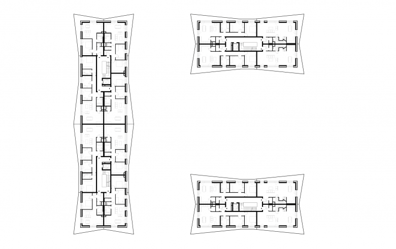
Vater, Mutter, Kind. Wie eine prototypische Familie fügen sich im Luxemburgischen Kirchberg zwei große und zwei kleine Baukörper zu einem neuen Ensemble, das insgesamt 94 Wohnungen Platz bietet. Die langgestreckten Baukörper im Quartier du Parc Réimerwee liegen am nordöstlichen Rand eines Neubaugebietes, die nordwestliche Seite wird vom Boulevard Konrad Adenauer gesäumt. Nach Süden hin öffnet sich die Anlage zum Parc Réimerwee. Zwei punktförmige Bauten vervollständigen das Ensemble und lassen so ein aus vier Individuen zusammengesetztes architektonisches Kollektiv entstehen. Die Differenzierung der Baukörper verhilft dem Gesamtkomplex im Quartier du Parc Réimerwee – wie in einer aus unterschiedlichen Charakteren bestehenden Familie – zu einer heterogenen, vielfältigen Erscheinung. Im straßenseitigen Riegel sind sämtliche Wohnungen zum Park hin orientiert und verfügen allesamt über einen Balkon oder eine Terrasse. In den parkseitigen Häusern sind die Apartments zu allen Seiten geöffnet, somit entstehen Wohneinheiten höchst unterschiedlichen Zuschnitts. Das verbindende Treppenhaus weitet sich zu einem Gemeinschaftsraum mit Terrasse. Die Fassaden der Gebäudeteile sind horizontal gegliedert, wobei sich das Band auf Höhe der Wohnräume zu geräumigen Balkonen verbreitert. Umlaufende Geländer verstärken die dynamische Wirkung der in den harmonischen Familienverband eingebetteten Baukörper.
- Jahr
- 2021
- Projektstatus
- Gebaut
- Bauherrschaft
- Société Nationale des Habitations à Bon Marché
- Team
- Karel Bartos, Laurenz Batka, Florian Gottler, Jessica Wannhoff, Luca Melchiori, Miriam Bachmann, Felix Reiner, Ria Roberger, Baptiste Quételar
- Bauphysik
- Convex
- Landschaftsplanung
- Lidia Gawronska-Pawlowska
- Brandschutz & Tragwerksplanung
- Simon-Christiansen & Associés


















