Green Office® ENJOY
mehr Energie und Holz
GEBÄUDE MIT NACHHALTIGEM ERLEBNISWERT
Das Green Office® ENJOY ist ein besonderes Bürogebäude: Es steht auf einer Eisenbahn-Unterführung, es besteht größeren Teil aus Holz und produziert mehr Energie als es verbraucht. Rund 1.250 Menschen werden die 17.420 Quadratmeter Bürofläche nutzen, sie profitieren vom Erlebniswert der Architektur wie auch vom Komfort seiner technischen Ausstattung. Für das Quartier ist Green Office® ENJOY ein besonderer Ort: Es markiert den nordwestlichen Eingang zum neuen Stadtbezirk und es verfügt über einen eigenen Patio, dessen Grünfläche immerhin 15 Prozent der Grundfläche ausmacht. Das neue Positiv-Energiehaus ist ein optimiertes Produkt -in technischer, architektonischer und menschlicher Hinsicht.
Gebäude und Umgebung stehen immer in einer Wechselwirkung. Hier im Pariser Stadtteil Clichy-Batignolles beeinflusste diese Interaktion ganz wesentlich die Gestalt des Hauses. Aus einem ganz einfachen Grund: Die Betonplatte der Eisenbahn-Unterführung erforderte eine Leichtkonstruktion, um die Gebäude-Last aufnehmen zu können. In Zeiten des verstärkten Bewusstseins um die Endlichkeit der Ressourcen bot sich natürlich der Werkstoff Holz an. Langjährige Erfahrungen des Architekturbüros Baumschlager Eberle Architekten auf dem Gebiet von Holzkonstruktionen und seines Partnerbüros SCAPE in der ganzheitlichen Digitalisierung (BIM-Planung) machten die Entscheidung leicht.
Konstruktion
Realitätsbezogen und programmatisch war es die richtige Wahl. Holz wiegt immerhin ein Drittel weniger als Beton, lediglich das Sockelgeschoß wurde in Beton ausgeführt, um die Schwingungen der durchfahrenden Züge abzufangen. Mit seinen 2.700 m³ Holz aus Skandinavien und Österreich bindet das Green Office® ENJOY demnach 520 Tonnen CO2, da das Holz als natürlicher Kohlenstoffspeicher wirkt. Durch seine hauptsächlich aus Holz bestehende Konstruktion werden im Vergleich zum klassischen Bauprojekt aus Beton 2.900 Tonnen CO2 in der Produktion eingespart. Dies entspricht etwa 1.500 gepflanzten Bäumen oder dem Ausgleich von Emissionen aus 23 Millionen gefahrenen Fahrzeugkilometern. Der Einsatz dieses nachhaltigen Werkstoffes geschieht auf eine möglichst unkomplizierte Weise. Über dem Sockel erhebt sich eine klassische Pfosten-Riegel-Konstruktion aus verleimtem Schichtholz (Fichte und Tanne). Die Geschoßdecken bestehen aus Brettsperrholz (Kiefer) und sind mit Trittschalldämmungen ausgestattet. Die Fassaden sind mit einem Massiv-Holzfachwerk, Grobspanplatten (OSB), Mineralwolle und abschließenden Aluminiumkassetten aufgebaut.
Holz wird sehr gerne und oft mit Vorbehalten behaftet mit Brandgefahr in Verbindung gebracht. Bei den geläufigen Bildern von brennenden Holzbauten wird allerdings nicht genau hingesehen. Vor lauter Flammen übersieht man oft, dass die Holzstruktur sehr lange Bestand hat. Auch bei einem, hoffentlich nie eintretenden, worst-case-scenario zeigt Holz seine Qualitäten. Tests in österreichischen Versuchsanstalten haben nämlich gezeigt, dass tragende Holzelemente den „Beschuss“ mit 1000 Grad heißen Flammen über 90 Minuten standhalten. Es bildet nämlich durch die Feuereinwirkung eine feste Karbonschicht, die den Holzkern auf Dauer schützt. Es spricht also viel für Holz aus Gründen der Ressourcenschonung und der Sicherheit.
Der stetig nachwachsende Werkstoff Holz leistet aber viel mehr: Er bietet nämlich Atmosphäre. In den Büroräumen sichtbar, bringt er die Natur ins Gebäude. Man muss allerdings nicht in bis in die hochflexiblen Arbeitsbereiche vordringen, die alle vom Blick auf die Umgebung profitieren. Bereits die Eingangshalle ist mit Holz ausgestattet. Diese Halle ist eine besondere. Das Material und die Blickachse von der Straße kündigen den begrünten Patio an, dessen Erschließung das Gebäude in seiner ganzen Tiefe durchzieht.
Städtebau
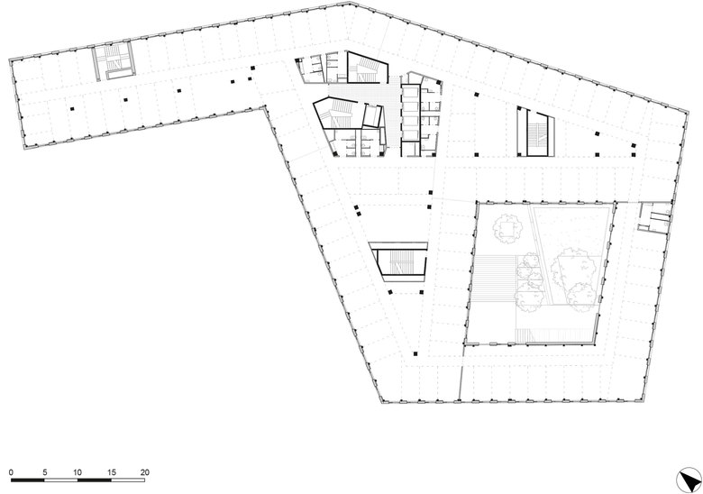
Im Gegensatz zu den gängigen Blockrandbebauung ist das Green Office® ENJOY ein transparentes Gebäude. Baumschlager Eberle Architekten und SCAPE haben ganz bewusst die Häuserkante der traditionellen Pariser Baustruktur mit ihrer strikten Abgrenzung zwischen Privat und Öffentlich hinterfragt. Und dies zum Vorteil der BenutzerInnen des Hauses. Es ist durchaus möglich fußläufig von der Metro über den Martin-Luther-King-Park bis zum Patio zu spazieren und von dort aus die Umgebung zu betrachten.
Es ist also ein anderes, man kann sagen innovatives, Stadterlebnis, das hier mit dieser Querung geboten wird. Wie auch die städtebauliche Gesamtdisposition des Plusenergiehauses den konkreten Ort optimiert. Die drei Gebäudetrakte mit ihrem Kern erfüllen ganz differenziert ihre Aufgaben für den Außenraum: Die zwei Trakte der ganz sanft geknickten Fassade an der Rue Mstislav Rostropovics begleiten den Straßenverlauf. Der Mehrwert dieser Disposition ist sofort sichtbar. Die Schmalseiten der Gebäudetrakte markieren, zum einen den Beginn des Quartiers, zum anderen Ecksituation in der Rue Mstislav Rostropovics. Das alles funktioniert ganz selbstverständlich, ohne besonderen baulichen Aufwand oder architektonische Gebärden.
Damit nicht genug. Der dritte, nahezu orthogonal verschwenkte, Trakt umschließt mit den beiden anderen Gebäudeflügeln besonders interessante Außenräume. Im Nordwesten öffnet sich das Gebäude in einer großen Geste gegenüber dem Stadtraum und den Gleisanlagen, während es im Südwesten den Außenraum des Patios umschließt. Makroskopischer und mikroskopischer Städtebau geschieht hier mit einem nur 7-stöckigen Gebäude, dessen Fassaden auch für die Passagiere der vorbeifahrenden Züge wahrnehmbar sind. Green Office® ENJOY ist auf jeden Fall ein Gebäude mit Erlebniswert. Nicht nur aus der Sicht der Passanten. Die BenutzerInnen des Plusenergiehauses können nämlich von 3 gedeckten Terrassen im 5. Stock aus, die Umgebung genießen. Im Süden reicht der Blick bis zur Sacre Coeur, im Westen zum Eiffelturm, während von der Terrasse im Norden die nahe Justizstadt ins Auge fällt.
Architektur
Ebenso logisch wie der Städtebau ist die Architektur des Hauses aufgebaut. Baumschlager Eberle Architekten und SCAPE beziehen sich in ihrer Haltung auf das Elementare des Mediums, ohne Botschaften oder Bilderwelten (Aerodynamik oder Biomorphie) bemühen zu müssen. Beim Green Office® ENJOY spannt sich die Gebäudehülle über das Bauvolumen. Diese Oberfläche mit ihren Schichtungen und damit wahrnehmbaren Tiefen verfügt über ein hohes Maß an skulpturalen Qualitäten im städtischen Raum. Ergänzend dazu wird die Botschaft des Gebäudes differenziert. Die hohen Fenster und die sie begleitenden Aluminiumplatten erzeugen eine offensichtliche Vertikale an der Fassade als Hinweis auf die elementare Aussage der Architektur, nämlich dass sie steht.
Das mag simpel klingen, die ästhetische Formulierung des Elementaren bringt aber für das Gebäude und seine Nutzer ein hohes Maß an Ruhe und Selbstverständlichkeit vor dem Springbrunnen der urbanen und digitalen Bilderwelten. Die Farbe trägt dazu das ihre bei. „Cappuccino‘“ genannt erinnert sie an die vergangenen Gleisanlagen des Bahnhofes Batignolles und zeitlich aktuell an das Grundnahrungsmittel vieler Menschen im Büro.
Neben dieser grundsätzlichen Aussage bringt die Architektur aber auch kulturelle Bezüge ins Spiel. Das alte, historistische Paris des Barons Haussmann ist - im Gegensatz etwa zu Wien oder Berlin – geprägt von stark vertikalen Fassadengliederungen und der klassischen Beletage mit den minimalistischen Balkonen. Hier in Clichy-Batignolles findet sich die Vertikale wieder, der Zeit angemessen „wandert“ die leicht auskragende Beletage in die obersten Stockwerke und die Balkone mutieren zu großzügigen Aussichtsterrassen. Von diesen Terrassen aus ist es nicht mehr weit bis zum Dach.
Plusenergie
Nachhaltigkeit ist ein zentrales Thema im Entwurf von Baumschlager Eberle Architekten und SCAPE. Dabei spielen auch die großzügigen Dachflächen des Green Office® ENJOY eine wesentliche Rolle. Hier nutzen die Photovoltaik-Anlagen die Gratisenergie des himmlischen Heizstrahlers. Die 1.700 m² Flächen erzeugen 22 kWh/(m²a) an Sonnenenergie bei einem, sehr niedrigen, Eigenverbrauch des Gebäudes von 19 kWh/(m²a), sodass ein Überschuss von 20 % von schadstofffreier Energie gewonnen wird. Bis dato ist innerhalb der Pariser Großprojekte Green Office® ENJOY das einzige Gebäude mit einem Positiv-Energie-Standard.
Selbst ohne diese aktive Energiegewinnung ist das Gebäude sparsam im Umgang mit den Ressourcen. Dazu tragen die Heiz-Kühldecken im Gebäudeinneren, der Anschluss an das Pariser Fernwärmenetz und, weil besonders langlebig, die Architektur bei. Die kompakte Gebäudehülle verfügt trotz des sehr guten Lichteintrags einen recht niedrigen Fensterflächenanteil von 37 Prozent. Es ist also die Architektur selbst die zur Schonung der Ressourcen beiträgt und damit auch beweist, dass zwischen Ökonomie und Ökologie kein Widerspruch besteht.
Den Begriff Plusenergie kann man beim Green Office® ENJOY nicht nur im technischen Sinn verstehen. Das Gebäude bringt Komfort, räumliche Erlebnisse, Schönheit und Grünraum in den Alltag der Arbeitenden, es sorgt also dafür, dass deren Energien länger im Plus-Bereich bleiben als bei herkömmlichen Büro-Objekten.
- Jahr
- 2019
- Projektstatus
- Gebaut
- Bauherrschaft
- Bouygues Immobilier und Caisse des Dépots
- Team
- AS, MV
- Partnerbüro
- SCAPE







